Get Michigan Property Transfer Affidavit 2766 Form

Get Michigan Property Transfer Affidavit 2766 Form

The Michigan Property Transfer Affidavit 2766 form is a legal document used to report the transfer of property ownership in the state of Michigan. This form ensures that the local government has accurate information regarding property transactions, which is essential for tax assessments and record-keeping. To facilitate a smooth transfer process, it is important to complete the form accurately.

Start filling out the Michigan Property Transfer Affidavit 2766 form by clicking the button below.

Structure

The Michigan Property Transfer Affidavit 2766 form plays a crucial role in the process of real estate transactions within the state. This document is essential for both buyers and sellers, as it provides the necessary information regarding the transfer of property ownership. It captures vital details such as the property address, the names of the parties involved, and the sale price, ensuring that the transaction is properly recorded. By completing this form, individuals help local assessors update property tax records accurately, which can affect future tax assessments. Additionally, the affidavit serves to confirm whether the property is subject to any exemptions or special assessments. Understanding the significance of this form is important for anyone involved in a property transfer, as it not only facilitates compliance with state regulations but also helps prevent potential disputes in the future.

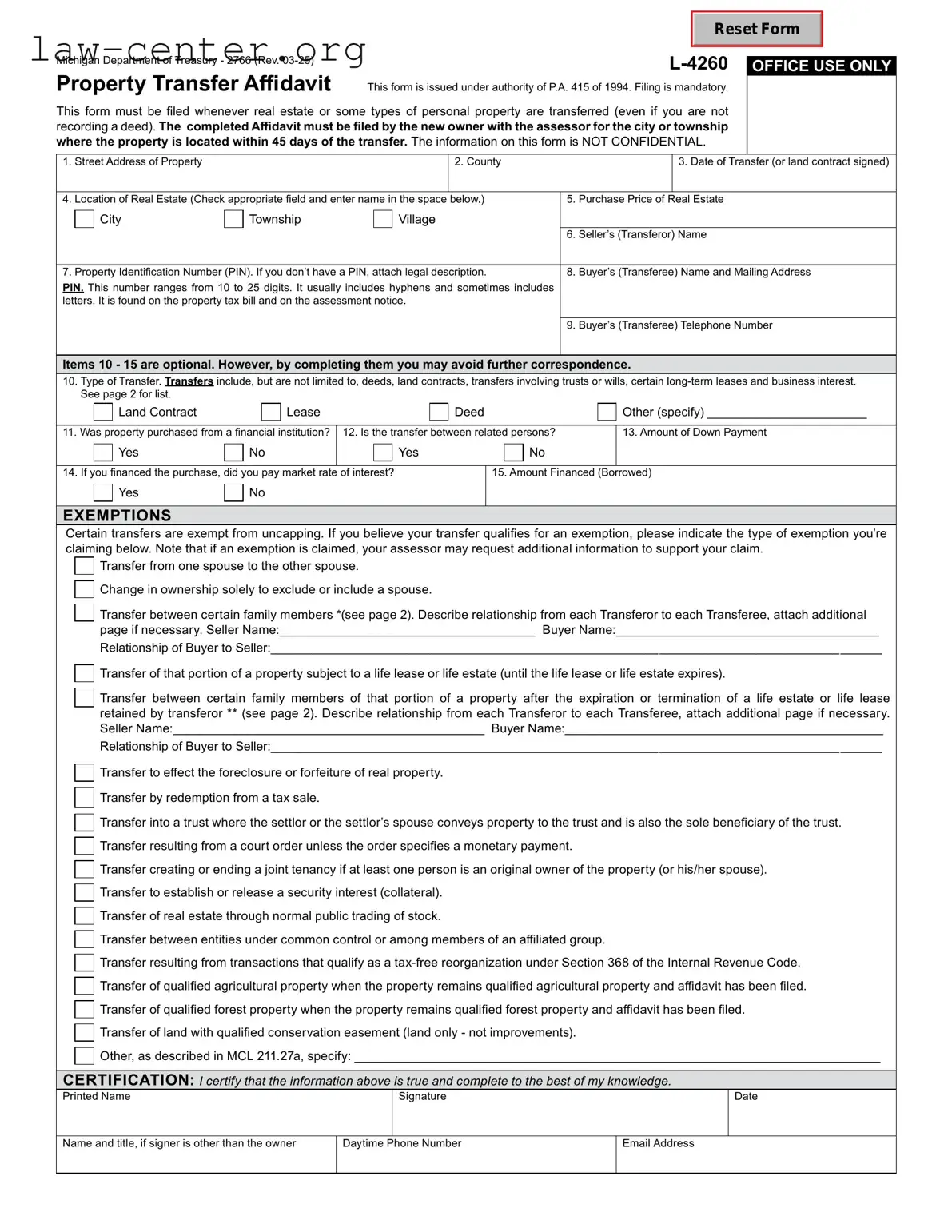
Michigan Property Transfer Affidavit 2766 Preview

 

 

 

 

 

 

 

 

 

 

 

 

Reset Form

 

 

 

 

 

 

 

 

 

 

 

 

 

 

 

Michigan Department of Treasury - 2766 (Rev. 03-25)

 

 

 

 

 

L-4260

OFFICE USE ONLY

 

 

 

 

 

 

 

 

 

 

Property Transfer Affidavit

This form is issued under authority of P.A. 415 of 1994. Filing is mandatory.

 

 

 

 

This form must be filed whenever real estate or some types of personal property are transferred (even if you are not

 

 

recording a deed). The completed Affidavit must be filed by the new owner with the assessor for the city or township

 

 

where the property is located within 45 days of the transfer. The information on this form is NOT CONFIDENTIAL.

 

 

 

 

 

 

 

 

 

 

 

 

 

 

 

 

 

1. Street Address of Property

 

 

 

 

 

2. County

 

 

3. Date of Transfer (or land contract signed)

 

 

 

 

 

 

 

 

 

 

 

 

 

 

4. Location of Real Estate (Check appropriate field and enter name in the space

below.)

5.

Purchase Price of

Real Estate

 

 

 

 

City

 

Township

 

 

Village

 

 

 

 

 

 

 

 

 

 

 

 

 

 

 

 

 

 

 

 

 

 

 

 

 

 

6.

Seller’s (Transferor) Name

 

 

 

 

 

 

 

 

 

 

 

 

 

 

 

 

7. Property Identification Number (PIN). If you don’t have a PIN, attach legal description.

8.

Buyer’s (Transferee) Name and Mailing Address

PIN. This number ranges from 10 to 25 digits. It usually includes hyphens and sometimes includes

 

 

 

 

 

 

letters. It is found on the property tax bill and on the assessment notice.

 

 

 

 

 

 

 

 

 

 

 

 

 

 

 

 

 

 

 

 

 

 

 

 

 

 

 

 

 

 

9.

Buyer’s (Transferee) Telephone Number

 

 

 

 

 

 

 

 

 

 

 

 

 

 

 

Items 10 - 15 are optional. However, by completing them you may avoid further correspondence.

10.Type of Transfer. Transfers include, but are not limited to, deeds, land contracts, transfers involving trusts or wills, certain long-term leases and business interest.

See page 2 for list.

Land Contract

Lease

Deed

Other (specify) _______________________

11. Was property purchased from a financial institution?

12. Is the transfer between related persons?

13. Amount of Down Payment

 

 

Yes

 

No

 

 

Yes

 

 

No

 

 

 

 

 

 

 

 

 

 

 

 

 

14. If you financed the purchase, did you pay market rate

of interest?

15. Amount Financed (Borrowed)

 

 

Yes

 

No

 

 

 

 

 

 

 

 

 

 

 

 

 

 

 

 

 

EXEMPTIONS

Certain transfers are exempt from uncapping. If you believe your transfer qualifies for an exemption, please indicate the type of exemption you’re claiming below. Note that if an exemption is claimed, your assessor may request additional information to support your claim.

Transfer from one spouse to the other spouse.

Change in ownership solely to exclude or include a spouse.

Transfer between certain family members *(see page 2). Describe relationship from each Transferor to each Transferee, attach additional page if necessary. Seller Name:_____________________________________ Buyer Name:______________________________________

Relationship of Buyer to Seller:________________________________________________________________________________________

Transfer of that portion of a property subject to a life lease or life estate (until the life lease or life estate expires).

Transfer between certain family members of that portion of a property after the expiration or termination of a life estate or life lease retained by transferor ** (see page 2). Describe relationship from each Transferor to each Transferee, attach additional page if necessary. Seller Name:_____________________________________________ Buyer Name:______________________________________________

Relationship of Buyer to Seller:________________________________________________________________________________________

Transfer to effect the foreclosure or forfeiture of real property.

Transfer by redemption from a tax sale.

Transfer into a trust where the settlor or the settlor’s spouse conveys property to the trust and is also the sole beneficiary of the trust.

Transfer resulting from a court order unless the order specifies a monetary payment.

Transfer creating or ending a joint tenancy if at least one person is an original owner of the property (or his/her spouse).

Transfer to establish or release a security interest (collateral).

Transfer of real estate through normal public trading of stock.

Transfer between entities under common control or among members of an affiliated group.

Transfer resulting from transactions that qualify as a tax-free reorganization under Section 368 of the Internal Revenue Code.

Transfer of qualified agricultural property when the property remains qualified agricultural property and affidavit has been filed. Transfer of qualified forest property when the property remains qualified forest property and affidavit has been filed.

Transfer of land with qualified conservation easement (land only - not improvements).

Other, as described in MCL 211.27a, specify: ____________________________________________________________________________

CERTIFICATION: I certify that the information above is true and complete to the best of my knowledge.

Printed Name

Signature

Date

Name and title, if signer is other than the owner

Daytime Phone Number

Email Address

2766, Page 2

Instructions:

This form must be filed when there is a transfer of real property or one of the following types of personal property:

Buildings on leased land.

Leasehold improvements, as defined in MCL Section 211.8(h).

Leasehold estates, as defined in MCL Section 211.8(i) and (j).

Transfer of ownership means the conveyance of title to or a present interest in property, including the beneficial use of the property. For complete descriptions of qualifying transfers, please refer to MCL Section 211.27a(6)(a-j).

Excerpts from Michigan Compiled Laws (MCL), Chapter 211

**Section 211.27a(7)(d): Beginning December 31, 2014, a transfer of that portion of residential real property that had been subject to a life estate or life lease retained by the transferor resulting from expiration or termination of that life estate or life lease, if the transferee is the transferor’s or transferor’s spouse’s mother, father, brother, sister, son, daughter, adopted son, adopted daughter, grandson, or granddaughter and the residential real property is not used for any commercial purpose following the transfer. Upon request by the department of treasury or the assessor, the transferee shall furnish proof within 30 days that the transferee meets the requirements of this subdivision. If a transferee fails to comply with a request by the department of treasury or assessor under this subdivision, that transferee is subject to a fine of $200.00.

*Section 211.27a(7)(u): Beginning December 31, 2014, a transfer of residential real property if the transferee is the transferor’s or the transferor’s spouse’s mother, father, brother, sister, son, daughter, adopted son, adopted daughter, grandson, or granddaughter and the residential real property is not used for any commercial purpose following the conveyance. Upon request by the department of treasury or the assessor, the transferee shall furnish proof within 30 days that the transferee meets the requirements of this subparagraph. If a transferee fails to comply with a request by the department of treasury or assessor under this subparagraph, that transferee is subject to a fine of $200.00.

Section 211.27a(10): “... the buyer, grantee, or other transferee of the property shall notify the appropriate assessing office in the local unit of government in which the property is located of the transfer of ownership of the property within 45 days of the transfer of ownership, on a form prescribed by the state tax commission that states the parties to the transfer, the date of the transfer, the actual consideration for the transfer, and the property’s parcel identification number or legal description.”

Section 211.27(6): “Except as otherwise provided in subsection (7), the purchase price paid in a transfer of property is not the presumptive true cash value of the property transferred. In determining the true cash value of transferred property, an assessing officer shall assess that property using the same valuation method used to value all other property of that same classification in the assessing jurisdiction.”

Penalties:

Section 211.27b(1): “If the buyer, grantee, or other transferee in the immediately preceding transfer of ownership of property does not notify the appropriate assessing office as required by section 27a(10), the property’s taxable value shall be adjusted under section 27a(3) and, subject to subsection (9), all of the following must be levied:

(a)Any additional taxes that would have been levied if the transfer of ownership had been recorded as required under this act from the date of transfer.

(b)Interest and penalty from the date the tax would have been originally levied.

(c)For property classified under section 34c as either industrial real property or commercial real property, a penalty in the following amount:

(i)Except as otherwise provided in subparagraph (ii), if the sale price of the property transferred is $100,000,000.00 or less, $20.00 per day for each separate failure beginning after the 45 days have elapsed, up to a maximum of $1,000.00.

(ii)If the sale price of the property transferred is more than $100,000,000.00, $20,000.00 after the 45 days have elapsed.

(d)For real property other than real property classified under section 34c as industrial real property or commercial real property, a penalty of $5.00 per day for each separate failure beginning after the 45 days have elapsed, up to a maximum of one of the following, as applicable:

(i)For property owned and occupied as a principal residence, $200.00. As used in subparagraph, “principal residence” means that term as defined in section 7dd.

(ii)For all other property, $4000.00

Document Data

Fact Name Details
Purpose The Michigan Property Transfer Affidavit 2766 form is used to report the transfer of property ownership to the local assessor.
Governing Law This form is governed by the Michigan General Property Tax Act, specifically MCL 211.27a.
Filing Requirement Property owners must file this affidavit within 45 days of the property transfer.
Information Required The form requires details such as the property address, the names of the buyer and seller, and the sale price.
Consequences of Non-Compliance Failure to file the affidavit may result in penalties or incorrect property tax assessments.

How to Use Michigan Property Transfer Affidavit 2766

After completing the Michigan Property Transfer Affidavit 2766 form, the next step is to submit it to the appropriate local government office. This form is essential for documenting property transfers and ensuring compliance with state regulations.

  1. Obtain a copy of the Michigan Property Transfer Affidavit 2766 form. This can be done online or at your local government office.
  2. Begin by filling in the property owner's information. Include the name, address, and contact information of the seller.
  3. Next, provide the buyer’s information. Enter the name, address, and contact details of the buyer.
  4. Fill in the property description. This includes the property address, parcel number, and any relevant legal descriptions.
  5. Indicate the date of transfer. This is the date when the property ownership is officially changing hands.
  6. Complete the section regarding the purchase price. Clearly state the amount agreed upon for the sale of the property.
  7. If applicable, provide information on any exemptions or special circumstances related to the transfer.
  8. Review all entered information for accuracy. Ensure that there are no errors or omissions.
  9. Sign and date the form. Both the seller and buyer must sign to validate the document.
  10. Submit the completed form to your local government office. Check for any specific submission guidelines or additional documentation required.

Key Facts about Michigan Property Transfer Affidavit 2766

What is the Michigan Property Transfer Affidavit 2766 form?

The Michigan Property Transfer Affidavit 2766 form is a document that property owners must complete when transferring ownership of real estate in Michigan. This form helps local assessors determine the property's value for tax purposes and ensures that accurate records are maintained. It is typically required during a sale, transfer, or inheritance of property.

Who is required to file the Property Transfer Affidavit?

What information is needed to complete the form?

To complete the Michigan Property Transfer Affidavit 2766, you will need to provide several key pieces of information. This includes the property address, the names of the buyer and seller, the date of transfer, and the sale price. Additionally, you may need to disclose any special circumstances, such as whether the property is part of a trust or if it has been inherited.

Where do I submit the Property Transfer Affidavit?

The completed Property Transfer Affidavit should be submitted to the local assessor's office in the jurisdiction where the property is located. It's advisable to check with the specific office for any additional requirements or preferred submission methods, such as in-person delivery or mail.

What happens if I fail to file the affidavit on time?

If the Property Transfer Affidavit is not filed within the required 45-day timeframe, the property may be assessed at a higher rate, which could lead to increased property taxes. Additionally, late filings might result in penalties. To avoid these issues, it is crucial to ensure timely submission of the form after any property transfer.

Can I amend the Property Transfer Affidavit after submission?

Yes, it is possible to amend the Property Transfer Affidavit if you realize that there was an error or if additional information needs to be included. To do this, contact the local assessor's office for guidance on the amendment process. They can provide the necessary steps to correct the information on file.

Common mistakes

Filling out the Michigan Property Transfer Affidavit 2766 form can be a straightforward process, but many people make common mistakes that can lead to delays or complications. One frequent error is not providing accurate property descriptions. Ensure that the property address and legal description match the information on the deed. Inaccuracies can cause confusion and may result in the form being rejected.

Another mistake is failing to include all required signatures. The form must be signed by the seller and, in some cases, the buyer. Missing signatures can halt the transfer process. Always double-check that everyone who needs to sign has done so before submitting the form.

Some individuals overlook the importance of checking for tax exemptions. If the property qualifies for any exemptions, such as a principal residence exemption, it’s crucial to indicate this on the form. Failing to do so can lead to higher property taxes than necessary.

People often forget to date the form. A missing date can create uncertainty about when the transaction occurred. This oversight may complicate matters with local tax authorities, so be sure to include the date of signing.

Inaccurate valuation is another common pitfall. The form requires an estimated market value of the property. Providing an unrealistic figure can raise red flags during the assessment process. It’s best to base this value on recent comparable sales in the area.

Not keeping a copy of the completed form is a mistake many make. Always retain a copy for personal records. This can be helpful for future reference or if any questions arise regarding the transaction.

Some people neglect to submit the form within the required timeframe. The Michigan Property Transfer Affidavit must be filed within 45 days of the transfer. Missing this deadline can lead to penalties or complications with property tax assessments.

Another error involves the use of incorrect or outdated forms. Always ensure you are using the most recent version of the Michigan Property Transfer Affidavit 2766. Using an old form may lead to issues with processing your submission.

Lastly, individuals sometimes fail to read the instructions carefully. Each section of the form has specific requirements. Taking the time to understand what is needed can prevent many of the mistakes mentioned above. A thorough review can save time and avoid potential problems down the line.

Documents used along the form

The Michigan Property Transfer Affidavit 2766 form is a crucial document used during property transactions in Michigan. However, several other forms and documents often accompany it to ensure a smooth transfer of property ownership. Here’s a look at some of these essential documents.

  • Quit Claim Deed: This document transfers ownership of property from one party to another without any warranties. It's often used in situations like transfers between family members or divorce settlements.
  • Warranty Deed: Unlike a quit claim deed, a warranty deed guarantees that the seller holds clear title to the property and has the right to sell it. This document provides the buyer with more protection.
  • Affidavit of Value: This form is often required to report the value of the property being transferred. It helps local assessors determine property taxes based on the sale price.
  • Property Transfer Tax Form: This form is used to calculate and report the state and local transfer taxes due on the property transfer. It ensures compliance with tax regulations.
  • Title Insurance Policy: This document protects the buyer against any potential claims or disputes over the property title. It’s an important safeguard for any real estate transaction.
  • Closing Disclosure: This document outlines the final terms of the loan and all closing costs associated with the property purchase. It ensures that both parties are aware of their financial obligations.

When engaging in a property transaction, having the right documents is essential. Each of these forms plays a specific role in protecting the interests of both buyers and sellers, making the process more transparent and secure.

Similar forms

  • Quit Claim Deed: This document transfers ownership of property from one party to another without any warranties. Like the Michigan Property Transfer Affidavit, it serves to formally document the transfer of property rights.
  • Warranty Deed: A warranty deed provides a guarantee that the seller holds clear title to the property. Similar to the Property Transfer Affidavit, it is used in property transactions to ensure proper ownership transfer.
  • Real Estate Transfer Tax Affidavit: This form is used to report the transfer of real estate and calculate any applicable transfer taxes. Both documents are essential for recording property transfers in Michigan.
  • Title Insurance Policy: Title insurance protects against losses from defects in title. While not a transfer document, it is often used alongside the Property Transfer Affidavit to ensure the buyer's interests are protected.
  • Deed of Trust: A deed of trust secures a loan with real property. It is similar in that it involves the transfer of an interest in property, albeit for securing debt rather than outright ownership.
  • Lease Agreement: This document outlines the terms under which one party rents property from another. While it does not transfer ownership, it establishes rights and responsibilities related to property use.
  • Property Management Agreement: This agreement details the management of rental property. Similar to the Property Transfer Affidavit, it involves formal documentation related to property interests.
  • Affidavit of Identity: This document verifies the identity of the parties involved in a transaction. It is often used in conjunction with property transfer documents to confirm the identities of buyers and sellers.
  • Settlement Statement: Also known as a HUD-1, this document outlines the financial details of a real estate transaction. It complements the Property Transfer Affidavit by providing a detailed account of the transaction's financial aspects.
  • Notice of Default: This document informs a borrower that they are in default on their mortgage. It is similar in that it relates to property ownership and can affect the transfer of property rights.

Dos and Don'ts

When completing the Michigan Property Transfer Affidavit 2766 form, it’s essential to approach the process with care. Here are five important do's and don'ts to keep in mind:

  • Do ensure all information is accurate and up-to-date. Double-check the property details, including the address and parcel number.
  • Do sign and date the form. An unsigned affidavit may be deemed invalid.
  • Do include the names of all parties involved in the property transfer. This helps avoid confusion later.
  • Don't leave any sections blank. If a section does not apply, indicate that clearly.
  • Don't submit the form without reviewing it for errors. Mistakes can delay the transfer process.

Misconceptions

  • Misconception 1: The Property Transfer Affidavit is only needed for sales transactions.

    This form is required not only for sales but also for various types of property transfers, including gifts, inheritance, and transfers between family members.

  • Misconception 2: Filing the affidavit is optional.

    In Michigan, filing the Property Transfer Affidavit is mandatory for most property transfers. Failing to submit it can result in penalties or complications with property tax assessments.

  • Misconception 3: The form only applies to residential properties.

    The affidavit applies to all types of real property, including commercial and industrial properties, not just residential ones.

  • Misconception 4: The affidavit must be filed before the property transfer occurs.

    The form can be filed after the transfer has taken place, but it must be submitted within a specific timeframe to avoid issues with tax assessments.

  • Misconception 5: There is a fee associated with filing the affidavit.

    Filing the Property Transfer Affidavit is typically free of charge. However, there may be fees for recording the deed itself, which is a separate process.

Key takeaways

When dealing with the Michigan Property Transfer Affidavit 2766 form, understanding its purpose and proper completion is crucial. Here are some key takeaways to keep in mind:

  • Purpose of the Form: This affidavit is used to report property transfers to the local assessor's office. It helps ensure accurate property tax assessments.
  • Who Must File: The form must be filed by the buyer or seller of the property. It is typically required when a property changes ownership.
  • Filing Deadline: The affidavit should be submitted within 45 days of the transfer of ownership. Timely filing helps avoid potential penalties.
  • Information Required: The form requires details such as the property's address, the names of the buyer and seller, and the sale price. Accurate information is essential for proper processing.
  • Signature Requirement: Both the buyer and seller must sign the affidavit. This verifies that the information provided is true and accurate.
  • Local Variations: While the form is standardized, local jurisdictions may have specific requirements or additional forms. Always check with your local assessor's office for guidance.

By understanding these key points, individuals can navigate the property transfer process more effectively and ensure compliance with Michigan's regulations.