Get Illinois Final Waiver Of Lien Form

Get Illinois Final Waiver Of Lien Form

The Illinois Final Waiver of Lien form is a legal document that serves to release any claims or liens against a property once a contractor or subcontractor has been paid for their work. This form is crucial for ensuring that all parties involved in a construction project are protected from future claims related to unpaid services or materials. For those needing to complete this important document, click the button below to fill out the form.

Structure

The Illinois Final Waiver of Lien form serves as a critical document in the construction and real estate industries, ensuring that all parties involved in a project are protected from future claims related to unpaid work or materials. This form is designed for contractors, subcontractors, and suppliers who have provided labor or materials for a property, allowing them to formally waive any rights to file a lien against the property once they have received payment. It includes essential details such as the name of the contractor, the property owner, and a description of the work performed, along with the total contract amount and any payments received. The form also incorporates a section for an affidavit, where the contractor affirms the accuracy of the information provided and confirms that no other claims exist against the project. By signing this document, the undersigned acknowledges receipt of payment and relinquishes any future claims to lien rights under Illinois law, thereby offering peace of mind to property owners and facilitating smoother transactions in the construction process.

Illinois Final Waiver Of Lien Preview

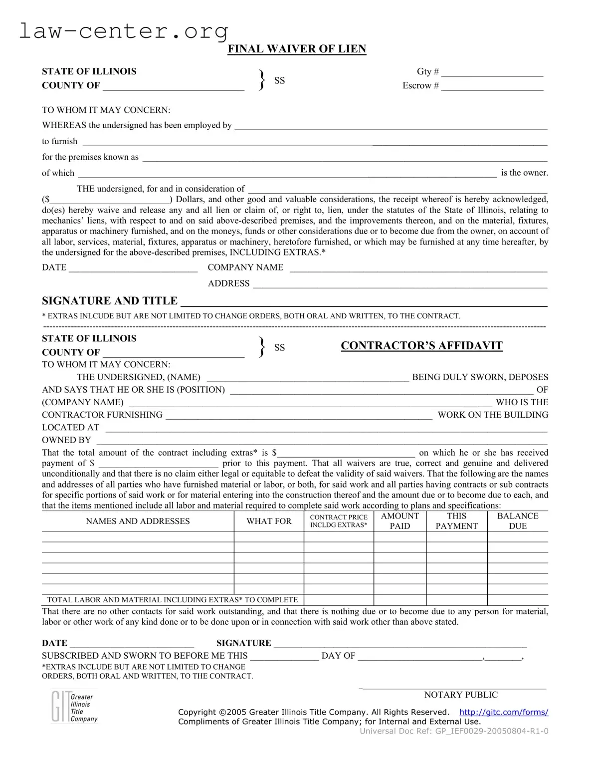
FINAL WAIVER OF LIEN

STATE OF ILLINOIS

} SS

Gty # _____________________

COUNTY OF _____________________________

Escrow # _____________________

TO WHOM IT MAY CONCERN:

WHEREAS the undersigned has been employed by ____________________________________________________________________

to furnish _____________________________________________________________________________________________________

for the premises known as ________________________________________________________________________________________

of which ___________________________________________________________________________________________ is the owner.

THE undersigned, for and in consideration of _________________________________________________________________

($__________________________) Dollars, and other good and valuable considerations, the receipt whereof is hereby acknowledged,

do(es) hereby waive and release any and all lien or claim of, or right to, lien, under the statutes of the State of Illinois, relating to mechanics’ liens, with respect to and on said above-described premises, and the improvements thereon, and on the material, fixtures, apparatus or machinery furnished, and on the moneys, funds or other considerations due or to become due from the owner, on account of all labor, services, material, fixtures, apparatus or machinery, heretofore furnished, or which may be furnished at any time hereafter, by the undersigned for the above-described premises, INCLUDING EXTRAS.*

DATE ____________________________ COMPANY NAME ________________________________________________________

ADDRESS ________________________________________________________________

SIGNATURE AND TITLE _______________________________________________________________

* EXTRAS INLCUDE BUT ARE NOT LIMITED TO CHANGE ORDERS, BOTH ORAL AND WRITTEN, TO THE CONTRACT.

-------------------------------------------------------------------------------------------------------------------------------------------------------------------

STATE OF ILLINOIS

} SS

CONTRACTOR’S AFFIDAVIT

COUNTY OF _____________________________

TO WHOM IT MAY CONCERN:

 

 

THE UNDERSIGNED, (NAME) ____________________________________________ BEING DULY SWORN, DEPOSES

AND SAYS THAT HE OR SHE IS (POSITION) __________________________________________________________________ OF

(COMPANY NAME) _______________________________________________________________________________ WHO IS THE

CONTRACTOR FURNISHING __________________________________________________________ WORK ON THE BUILDING

LOCATED AT ________________________________________________________________________________________________

OWNED BY __________________________________________________________________________________________________

That the total amount of the contract including extras* is $______________________________ on which he or she has received

payment of $ __________________________ prior to this payment. That all waivers are true, correct and genuine and delivered

unconditionally and that there is no claim either legal or equitable to defeat the validity of said waivers. That the following are the names and addresses of all parties who have furnished material or labor, or both, for said work and all parties having contracts or sub contracts for specific portions of said work or for material entering into the construction thereof and the amount due or to become due to each, and that the items mentioned include all labor and material required to complete said work according to plans and specifications:

NAMES AND ADDRESSES

WHAT FOR

CONTRACT PRICE INCLDG EXTRAS*

AMOUNT

PAID

THIS

PAYMENT

BALANCE

DUE

TOTAL LABOR AND MATERIAL INCLUDING EXTRAS* TO COMPLETE

That there are no other contacts for said work outstanding, and that there is nothing due or to become due to any person for material, labor or other work of any kind done or to be done upon or in connection with said work other than above stated.

DATE ___________________________ SIGNATURE _______________________________________________________

SUBSCRIBED AND SWORN TO BEFORE ME THIS _______________ DAY OF ___________________________,________,

*EXTRAS INCLUDE BUT ARE NOT LIMITED TO CHANGE

ORDERS, BOTH ORAL AND WRITTEN, TO THE CONTRACT.

________________________________________________

NOTARY PUBLIC

Copyright ©2005 Greater Illinois Title Company. All Rights Reserved. http://gitc.com/forms/

Compliments of Greater Illinois Title Company; for Internal and External Use.

Universal Doc Ref: GP_IEF0029-20050804-R1-0

Document Data

Fact Name Description
Purpose The Illinois Final Waiver of Lien form is used to waive and release any lien rights related to labor or materials provided for a specific property.
Governing Law This form is governed by the mechanics' lien statutes of the State of Illinois.
Consideration The waiver is executed in exchange for a specified amount of money or other valuable considerations.
Extras Definition Extras include change orders, both oral and written, that modify the original contract terms.
Affidavit Requirement The form requires a contractor's affidavit to confirm the accuracy of the waiver and payment details.
Notarization The document must be notarized to ensure its validity and enforceability.

How to Use Illinois Final Waiver Of Lien

Filling out the Illinois Final Waiver of Lien form is an important step in ensuring that all parties involved in a construction project are clear about payments and claims. Once the form is completed, it should be submitted to the appropriate parties to confirm that all financial obligations have been met. Below are the steps to guide you through the process of filling out the form correctly.

  1. Obtain the Form: Make sure you have the latest version of the Illinois Final Waiver of Lien form.
  2. Fill in the Date: Write the date at the top of the form where indicated.
  3. Enter the Company Information: Fill in the name of the company that has been employed to furnish the work.
  4. Describe the Work: Clearly state what work or materials have been provided for the project.
  5. Provide Property Details: Enter the address of the premises where the work was done.
  6. Identify the Owner: Write the name of the property owner in the designated space.
  7. State the Payment Amount: Indicate the total amount received for the work performed, including any extras.
  8. Sign the Form: The authorized person from the company should sign and print their name, along with their title.
  9. Complete the Contractor’s Affidavit: In the section provided, fill in the contractor’s name, position, and company name.
  10. Detail the Contract Amount: State the total amount of the contract and the payments received prior to this waiver.
  11. List Other Parties: Provide names and addresses of all parties who have furnished labor or materials, along with the amounts due.
  12. Finalize the Affidavit: The contractor must sign the affidavit and date it.
  13. Notarize the Document: Have the form notarized by a notary public to validate the signatures.

Key Facts about Illinois Final Waiver Of Lien

What is the Illinois Final Waiver of Lien form?

The Illinois Final Waiver of Lien form is a legal document used in the construction industry. It serves as a formal declaration from a contractor or subcontractor that they have received payment for work completed and are waiving their right to file a lien against the property. This form helps protect property owners by ensuring that all parties involved in the project have been compensated, thus minimizing the risk of future claims on the property.

Who needs to use the Final Waiver of Lien form?

This form is typically used by contractors, subcontractors, and suppliers who have provided labor or materials for a construction project in Illinois. If you have completed work and received payment, using this form can help clarify that you have no further claims against the property for the work performed.

What information is required to complete the form?

To complete the Illinois Final Waiver of Lien form, you will need to provide several key pieces of information. This includes the name of the contractor, the owner of the property, the description of the work performed, the total amount of the contract, and the amount received prior to the waiver. You will also need to include the date and your signature, along with your title and company name.

What does "waiving and releasing all lien or claim" mean?

When you waive and release all lien or claim, you are giving up your right to file a lien against the property for the work you've completed. This means that, after signing the form, you cannot later claim that you are owed money for that specific project. It’s a way to assure the property owner that they won’t face any future claims related to your work.

Are there any exceptions to the waiver?

Yes, the waiver can include exceptions for "extras," which refer to any additional work or change orders that were not part of the original contract. If you have performed extra work and wish to retain the right to claim payment for it, you should clearly outline those items in the waiver. Otherwise, signing the waiver may mean you forfeit any claims for those extras as well.

How does the waiver protect property owners?

The waiver protects property owners by ensuring that all contractors and subcontractors have been paid for their work. When everyone involved signs a waiver, it reduces the risk of mechanics’ liens being filed against the property, which could complicate future sales or refinancing. This clarity helps maintain a smooth title to the property.

Is the Final Waiver of Lien form legally binding?

Yes, once properly completed and signed, the Final Waiver of Lien form is a legally binding document. It signifies that the contractor or subcontractor has received payment and agrees to relinquish their right to file a lien. It’s important to ensure all information is accurate and complete before signing, as this document can have significant legal implications.

What should I do if I have not been paid?

If you have not been paid for your work, do not sign a Final Waiver of Lien form. Instead, consider discussing the payment issue with the property owner or general contractor. If necessary, you may want to seek legal advice to understand your options for recovering the owed amount, including the possibility of filing a lien if payment is not received.

Where can I obtain the Illinois Final Waiver of Lien form?

You can obtain the Illinois Final Waiver of Lien form from various sources, including legal document websites and local title companies. It's essential to ensure that you are using the most current version of the form, as laws and requirements can change. Consulting with a legal professional can also help ensure that you are using the correct form for your specific situation.

Common mistakes

Filling out the Illinois Final Waiver of Lien form requires attention to detail. One common mistake is leaving the Escrow Number blank. This number is crucial for identifying the specific transaction and ensuring that all parties are on the same page.

Another frequent error involves omitting the contractor's name. The form must clearly state who has provided the services or materials. Failing to include this information can lead to confusion and potential disputes down the line.

Many individuals also neglect to specify the amount paid prior to the final payment. This figure is important for confirming that all previous obligations have been met. Without it, the waiver may be considered incomplete.

Inaccurate or incomplete descriptions of the work performed can be problematic. The form requires a detailed account of the services or materials provided. Vague descriptions may lead to misunderstandings about what has been completed.

Another mistake is not listing all subcontractors or suppliers involved in the project. It is essential to include everyone who has contributed to the work. Omitting names can create liabilities that the contractor might not be aware of.

People sometimes forget to sign and date the form. A missing signature renders the waiver invalid. Ensure that both the date and signature are present to avoid complications.

Failing to notarize the document is another common oversight. The waiver must be notarized to verify the identity of the signer. This step is critical for the document's legal standing.

Inaccurate calculations of the contract price can lead to disputes. Double-check all figures to ensure they reflect the total amount, including any extras. Errors in this section can undermine the waiver's effectiveness.

Some individuals neglect to include change orders in the waiver. Extras should be documented clearly, as they are part of the overall contract. Failing to mention these can result in future claims.

Lastly, not reviewing the form for completeness before submission is a critical mistake. Take the time to ensure all sections are filled out accurately. A thorough review can prevent many issues that arise from incomplete or incorrect information.

Documents used along the form

The Illinois Final Waiver of Lien form is an essential document used in construction and real estate transactions to ensure that contractors and subcontractors waive their rights to file a lien against a property after receiving payment. Several other forms and documents often accompany this waiver to provide additional clarity and legal protection for all parties involved. Below are some commonly used documents.

  • Contractor’s Affidavit: This document is a sworn statement from the contractor, confirming the total contract amount and detailing payments received. It also lists all parties who have provided labor or materials, ensuring transparency about any outstanding claims.
  • Notice of Intent to Lien: Before filing a lien, this notice serves as a warning to property owners about potential claims for unpaid work. It informs the owner that a lien may be filed if payment is not made, thus encouraging timely resolution.
  • Preliminary Notice: Often required by law, this notice is sent to property owners to inform them of the contractors or subcontractors involved in the project. It helps protect the rights of those providing labor or materials by ensuring that the owner is aware of all parties working on the property.
  • Release of Lien: After payment has been made, this document formally releases any previously filed liens against the property. It serves to clear the title and reassure the property owner that there are no outstanding claims.
  • Change Order: This document outlines any modifications to the original contract, including changes in scope, pricing, or timelines. Change orders are crucial for maintaining clear communication and agreement between parties throughout the project.

Utilizing these documents alongside the Illinois Final Waiver of Lien form can help ensure a smooth transaction and protect the interests of all parties involved. Clear documentation is key to avoiding disputes and facilitating successful project completion.

Similar forms

The Illinois Final Waiver of Lien form is a crucial document in construction and real estate transactions. It serves to release any claims or liens against a property once payment has been received. Several other documents share similarities with this form, each serving a unique purpose in the realm of property and construction law. Below is a list of eight documents that are comparable to the Illinois Final Waiver of Lien form:

  • Partial Waiver of Lien: This document releases a portion of the lien rights but does not eliminate them entirely. It is often used when a contractor receives partial payment for services rendered.
  • Mechanics Lien: This legal claim is filed by contractors or suppliers who have not been paid for their work. While the Final Waiver of Lien releases such claims, a mechanics lien asserts them.
  • Contractor's Affidavit: Similar to the Final Waiver, this document confirms that all parties involved have been paid and that no further claims exist. It often accompanies payment requests.
  • Subcontractor's Waiver of Lien: This document is specifically for subcontractors, allowing them to waive their lien rights upon receiving payment from the general contractor.
  • Notice of Intent to Lien: This is a preliminary document notifying property owners of the contractor's intent to file a lien if payment is not made. It serves as a warning before the lien is formally filed.
  • Final Payment Application: This document outlines the total amount due for work completed. It often includes a request for the final payment along with waivers to ensure all parties are settled.
  • Change Order: This document modifies the original contract to account for changes in scope, cost, or time. It may reference waivers to ensure all parties agree on the adjustments.
  • Release of Lien: This document is used to formally remove a previously filed lien. It confirms that the debt has been settled and releases the property from any claims.

Dos and Don'ts

When completing the Illinois Final Waiver of Lien form, it is essential to follow specific guidelines to ensure accuracy and compliance. Below is a list of actions to take and avoid.

  • Do ensure that all fields are filled out completely. Missing information can lead to delays or complications.
  • Do use clear and legible handwriting or type the information. This helps prevent misunderstandings.
  • Do double-check the dollar amounts. Ensure that both the total contract amount and the payment received are correct.
  • Do include all necessary signatures. Both the contractor and a notary public must sign the document.
  • Do keep a copy of the completed form for your records. This can be important for future reference.
  • Don't leave out the description of the work performed. Provide a detailed account to avoid disputes.
  • Don't forget to include information about any extras. Clearly state any change orders that may affect the contract.

Misconceptions

Understanding the Illinois Final Waiver of Lien form is essential for contractors and property owners. However, several misconceptions can lead to confusion and potential legal issues. Below are some common misconceptions explained.

  • It eliminates all future claims. Many believe that signing the waiver means they can never make a claim for payment again. In reality, it only waives claims for work completed up to that point. Future work may still be subject to separate claims.
  • It is only necessary for large projects. Some think that the waiver is only relevant for extensive construction projects. However, it applies to any work involving mechanics' liens, regardless of the project's size.
  • Signing the waiver is optional. A misconception exists that the waiver can be ignored. In many cases, it is required to ensure that all parties are protected and that no liens can be placed on the property.
  • All waivers are the same. Not all waiver forms are identical. Each state has specific requirements, and the Illinois Final Waiver of Lien has unique elements that must be adhered to for it to be valid.
  • It guarantees payment. Some assume that signing the waiver guarantees they will receive payment. While it may facilitate payment, it does not ensure that funds will be disbursed as expected.
  • It can be revoked after signing. A common belief is that a signed waiver can be easily revoked. In fact, once signed and delivered, it typically cannot be undone without mutual consent from all parties involved.
  • Only contractors need to sign it. While contractors often sign waivers, subcontractors and suppliers may also be required to provide waivers to protect the property owner from potential lien claims.
  • It is unnecessary if there is a written contract. Some think that having a written contract negates the need for a waiver. However, a waiver is still crucial to protect against lien claims, even when a contract is in place.

Being informed about these misconceptions can help individuals navigate the complexities of the Illinois Final Waiver of Lien form more effectively.

Key takeaways

When filling out and using the Illinois Final Waiver of Lien form, keep these key takeaways in mind:

  • Complete all required fields: Ensure that you fill in the names, addresses, and relevant details accurately. This includes the contractor's name, project location, and payment amounts.
  • Understand the purpose: The form waives any lien rights against the property for the work performed. It serves as a formal acknowledgment that payment has been received.
  • Include all extras: Be sure to account for any change orders or additional work. This helps prevent disputes over unpaid amounts later on.
  • Sign and notarize: The form must be signed by the contractor and notarized to be valid. This adds a layer of authenticity and protection for all parties involved.