Get Florida Proof Loss Form

Get Florida Proof Loss Form

The Florida Proof Loss form is a sworn statement required for filing an insurance claim after a loss. This document helps ensure that the information provided is accurate and truthful, as submitting false information can lead to serious legal consequences. For those needing to fill out this form, click the button below to get started.

Structure

When navigating the often complex world of insurance claims, the Florida Proof of Loss form plays a crucial role in ensuring that policyholders receive the compensation they deserve after a loss. This form serves as a formal declaration that details the specifics of the loss, including the date, cause, and extent of the damage. It requires the insured to provide essential information such as the policy number, claim number, and the actual cash value of the property at the time of the loss. Additionally, it prompts the insured to disclose any other insurance policies that may cover the loss, as well as any changes in property title or occupancy during the policy term. Importantly, the form includes a sworn statement affirming that all information provided is truthful and complete, thereby protecting both the insurer and the insured from fraudulent claims. By understanding the components of the Florida Proof of Loss form, policyholders can better prepare themselves to present their claims effectively and ensure a smoother claims process.

Florida Proof Loss Preview

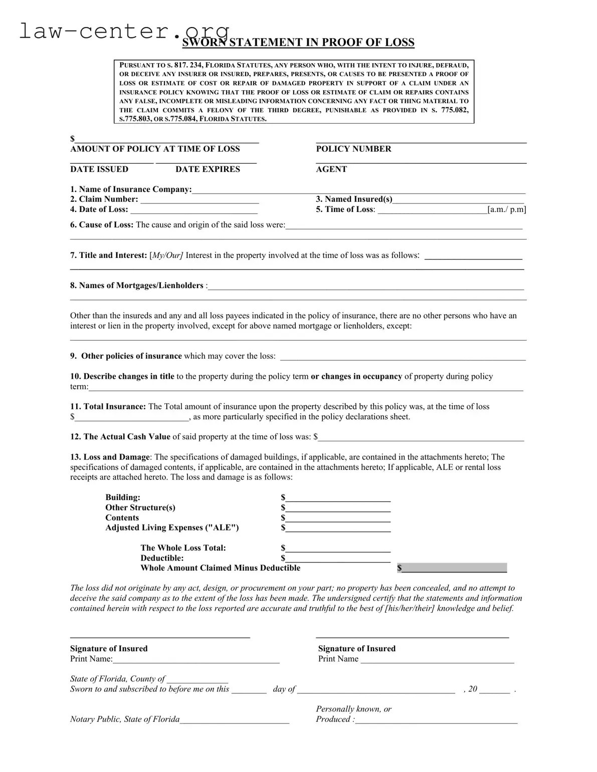
SWORN STATEMENT IN PROOF OF LOSS

PURSUANT TO S. 817. 234, FLORIDA STATUTES, ANY PERSON WHO, WITH THE INTENT TO INJURE, DEFRAUD, OR DECEIVE ANY INSURER OR INSURED, PREPARES, PRESENTS, OR CAUSES TO BE PRESENTED A PROOF OF LOSS OR ESTIMATE OF COST OR REPAIR OF DAMAGED PROPERTY IN SUPPORT OF A CLAIM UNDER AN INSURANCE POLICY KNOWING THAT THE PROOF OF LOSS OR ESTIMATE OF CLAIM OR REPAIRS CONTAINS ANY FALSE, INCOMPLETE OR MISLEADING INFORMATION CONCERNING ANY FACT OR THING MATERIAL TO THE CLAIM COMMITS A FELONY OF THE THIRD DEGREE, PUNISHABLE AS PROVIDED IN S. 775.082, S.775.803, OR S.775.084, FLORIDA STATUTES.

$__________________________________________

________________________________________________

AMOUNT OF POLICY AT TIME OF LOSS

POLICY NUMBER

___________________ _______________________

________________________________________________

DATE ISSUED

DATE EXPIRES

AGENT

1.Name of Insurance Company:____________________________________________________________________________

2.

Claim Number: ___________________________

3.

Named Insured(s)______________________________

4.

Date of Loss: _____________________________

5.

Time of Loss: _________________________[a.m./ p.m]

6.Cause of Loss: The cause and origin of the said loss were:______________________________________________________

________________________________________________________________________________________________________

7.Title and Interest: [My/Our] Interest in the property involved at the time of loss was as follows: ____________________

_____________________________________________________________________________________________

8.Names of Mortgages/Lienholders :________________________________________________________________________

________________________________________________________________________________________________________

Other than the insureds and any and all loss payees indicated in the policy of insurance, there are no other persons who have an interest or lien in the property involved, except for above named mortgage or lienholders, except:

________________________________________________________________________________________________________

9.Other policies of insurance which may cover the loss: ________________________________________________________

10.Describe changes in title to the property during the policy term or changes in occupancy of property during policy

term:___________________________________________________________________________________________________

11.Total Insurance: The Total amount of insurance upon the property described by this policy was, at the time of loss $__________________________, as more particularly specified in the policy declarations sheet.

12.The Actual Cash Value of said property at the time of loss was: $_______________________________________________

13.Loss and Damage: The specifications of damaged buildings, if applicable, are contained in the attachments hereto; The specifications of damaged contents, if applicable, are contained in the attachments hereto; If applicable, ALE or rental loss receipts are attached hereto. The loss and damage is as follows:

Building:

$________________________

 

Other Structure(s)

$________________________

 

Contents

$________________________

 

Adjusted Living Expenses ("ALE")

$________________________

 

The Whole Loss Total:

$________________________

 

Deductible:

$________________________

 

Whole Amount Claimed Minus Deductible

$________________________

The loss did not originate by any act, design, or procurement on your part; no property has been concealed, and no attempt to deceive the said company as to the extent of the loss has been made. The undersigned certify that the statements and information contained herein with respect to the loss reported are accurate and truthful to the best of [his/her/their] knowledge and belief.

_________________________________________

____________________________________________

Signature of Insured

Signature of Insured

Print Name:______________________________________

Print Name ___________________________________

State of Florida, County of ______________

Sworn to and subscribed to before me on this ________ day of ____________________________________ , 20 _______ .

 

Personally known, or

Notary Public, State of Florida_________________________

Produced :_____________________________________

Document Data

Fact Name Description
Governing Law The Florida Proof of Loss form is governed by Section 817.234 of the Florida Statutes.
Purpose This form is used to formally report a loss to an insurance company and is essential for processing claims.
Fraud Penalty Submitting false information on this form can result in felony charges, classified as a third-degree felony.
Claim Information The form requires details such as the claim number, date of loss, and the cause of loss to support the claim.
Insurance Details Policy information, including the policy number and amount at the time of loss, must be clearly stated.
Signature Requirement The form must be signed by the insured, certifying that the information provided is accurate and truthful.
Notarization The document must be sworn to and subscribed before a notary public in Florida.
Attachments Any additional documentation related to the loss, such as receipts or specifications of damages, should be attached.

How to Use Florida Proof Loss

After completing the Florida Proof Loss form, you will need to submit it to your insurance company. Ensure that all information is accurate and complete to avoid any delays in processing your claim. Once submitted, the insurance company will review your claim and may reach out for additional information if necessary.

  1. Begin by entering the amount of the policy at the time of loss in the designated space.
  2. Fill in your policy number.
  3. Provide the date issued and date expires for your insurance policy.
  4. Write the name of the insurance company.
  5. Input your claim number.
  6. List the named insured(s).
  7. Enter the date of loss.
  8. Specify the time of loss (indicate a.m. or p.m.).
  9. Describe the cause of loss in detail.
  10. State your title and interest in the property at the time of loss.
  11. List the names of mortgages/lienholders involved.
  12. Indicate any other policies of insurance that may cover the loss.
  13. Describe any changes in title or occupancy during the policy term.
  14. Enter the total insurance amount on the property at the time of loss.
  15. Provide the actual cash value of the property at the time of loss.
  16. Detail the loss and damage including amounts for buildings, other structures, contents, and adjusted living expenses.
  17. Calculate the whole amount claimed minus the deductible.
  18. Sign the form as the insured and print your name.
  19. Have the form notarized by a Notary Public in Florida.

Key Facts about Florida Proof Loss

What is the Florida Proof of Loss form?

The Florida Proof of Loss form is a legal document used by individuals to report a claim to their insurance company after experiencing a loss. This form requires detailed information about the loss, including the date and cause, the amount of insurance coverage, and any damages incurred. It serves as a formal declaration that the insured person is seeking compensation for their losses under their insurance policy. Completing this form accurately is crucial, as it helps ensure that your claim is processed smoothly and efficiently.

What information do I need to provide on the form?

When filling out the Florida Proof of Loss form, you will need to provide various pieces of information. This includes the name of your insurance company, your policy number, and the date and time of the loss. You must also describe the cause of the loss and detail your interest in the property. Additionally, you should list any mortgages or lienholders associated with the property. Be prepared to include the total amount of insurance, the actual cash value of the property at the time of loss, and any specific damages to buildings or contents. Accurate and complete information is vital to support your claim.

What are the consequences of providing false information on the form?

Providing false or misleading information on the Florida Proof of Loss form can have serious consequences. Under Florida law, if someone intentionally submits a proof of loss with the intent to deceive an insurer, they may be committing a felony. This can lead to severe penalties, including fines and potential imprisonment. It is essential to ensure that all information provided is truthful and accurate. Taking this responsibility seriously not only protects you legally but also helps facilitate a fair resolution of your claim.

How do I submit the Florida Proof of Loss form?

After completing the Florida Proof of Loss form, you should submit it to your insurance company as soon as possible. Check your policy for any specific submission guidelines, as some companies may require you to send the form via mail, email, or through an online portal. Ensure that you keep a copy of the completed form for your records. Additionally, consider following up with your insurance agent or claims adjuster to confirm that your submission has been received and is being processed. This proactive approach can help expedite your claim.

Common mistakes

Filling out the Florida Proof of Loss form is a critical step in the claims process, yet many individuals encounter common pitfalls that can delay their claims or lead to complications. One frequent mistake is failing to provide accurate information. Each section of the form requires specific details, such as the date and time of loss. Omitting or misreporting this information can raise questions about the validity of the claim.

Another common error is incomplete descriptions of the loss. When detailing the cause of loss, it is essential to be as thorough as possible. Vague descriptions can lead to misunderstandings and may prompt the insurance company to request further information, prolonging the process. It is advisable to include all relevant details to ensure clarity.

People often neglect to include all necessary attachments. The form specifies that additional documentation, such as receipts for damages or estimates for repairs, should be included. Failing to attach these documents can result in delays or even denials of the claim. Ensuring that all supporting materials are submitted with the form can help streamline the process.

Another mistake is misunderstanding the total insurance amount. It is crucial to accurately report the total amount of insurance coverage on the property at the time of loss. This figure should match the policy declarations sheet. Any discrepancies may raise red flags during the review process.

Some individuals also make the mistake of not disclosing other insurance policies that may cover the loss. The form requires you to list any additional policies that could potentially impact the claim. Failing to disclose this information could be viewed as an attempt to deceive the insurer, which could have serious legal implications.

Additionally, individuals sometimes ignore the section regarding changes in title or occupancy. This section is crucial for establishing the context of the claim. Any changes that occurred during the policy term should be accurately reported to avoid complications later on.

People also tend to overlook the importance of signing and dating the form correctly. The signature serves as a declaration that the information provided is true and accurate. A missing or incorrect signature can result in the form being rejected, causing further delays.

Lastly, some individuals do not consult with their insurance agent before submitting the form. Engaging with an agent can provide clarity on what information is necessary and help ensure that the form is filled out correctly. Taking this proactive step can prevent many of the common mistakes outlined above.

Documents used along the form

The Florida Proof of Loss form is a crucial document in the claims process. However, several other forms and documents are often used in conjunction with it. Each of these documents plays a specific role in ensuring that all necessary information is provided to facilitate a smooth claims process.

  • Claim Submission Form: This form is typically the first document submitted to the insurance company. It outlines the basic details of the claim, including the policyholder's information, the nature of the claim, and any relevant dates.
  • Loss Description Statement: This document provides a detailed account of the loss incident. It includes information about what happened, when it occurred, and any other relevant circumstances surrounding the loss.
  • Inventory of Damaged Property: A comprehensive list detailing all items that were damaged or lost. This inventory often includes descriptions, quantities, and estimated values of each item.
  • Repair Estimates: This document includes estimates from contractors or service providers for the cost of repairs. It helps substantiate the claim amount being requested.
  • Photographic Evidence: Photos of the damaged property can be submitted to visually support the claim. This evidence can be crucial in demonstrating the extent of the loss.
  • Witness Statements: If applicable, statements from witnesses can provide additional context or validation regarding the incident that caused the loss.
  • Previous Insurance Policies: Copies of any previous insurance policies related to the property may be required. This helps the insurer understand any prior coverage that may affect the current claim.
  • Notarized Affidavit: This document may be necessary to verify the authenticity of the claim. It is often signed in the presence of a notary public to confirm that the information provided is truthful.
  • Final Settlement Agreement: Once the claim is processed, this document outlines the agreement between the insurer and the insured regarding the settlement amount and terms.

Submitting these forms and documents alongside the Florida Proof of Loss form can significantly enhance the efficiency of the claims process. Ensuring that all necessary information is included will help avoid delays and facilitate a quicker resolution.

Similar forms

The Florida Proof of Loss form serves a critical role in the claims process for insurance. It requires the insured to provide detailed information about the loss and ensures that the information is truthful and complete. Several other documents share similarities with this form, each serving distinct purposes within the realm of insurance and claims. Below are five documents that are comparable to the Florida Proof of Loss form:

  • Sworn Statement in Proof of Loss: This document, like the Florida Proof of Loss form, requires the insured to declare the facts surrounding a loss under oath. Both documents emphasize the importance of accuracy and truthfulness, and they carry legal implications if false information is provided.
  • Claim Form: A claim form is used to formally initiate an insurance claim. Similar to the Florida Proof of Loss form, it collects essential information about the incident, including the date, time, and nature of the loss. Both forms serve as the starting point for the claims process.
  • Damage Assessment Report: This report is prepared by an insurance adjuster to evaluate the extent of damage to property. While the Florida Proof of Loss form is filled out by the insured, the damage assessment report provides an objective evaluation of the loss, complementing the information provided in the proof of loss.
  • Loss Run Report: A loss run report summarizes an insured's claims history, including past claims and losses. This document, like the Florida Proof of Loss form, is crucial for insurers to assess risk and determine coverage. Both documents help establish a clearer picture of the insured's situation.
  • Insurance Policy Declarations Page: This page outlines the specifics of the insurance coverage, including policy limits and covered perils. The Florida Proof of Loss form references the declarations page to clarify the amount of insurance at the time of loss. Both documents work together to ensure that claims are processed accurately.

Understanding these documents can help individuals navigate the insurance claims process more effectively. Each serves a unique purpose but collectively contributes to ensuring that claims are handled with the necessary diligence and care.

Dos and Don'ts

When filling out the Florida Proof of Loss form, it is crucial to approach the task with care. Here are ten essential do's and don'ts to ensure accuracy and compliance.

  • Do read the entire form carefully before starting to fill it out.
  • Do provide complete and accurate information for all required fields.
  • Do double-check the policy number and claim number for accuracy.
  • Do include the date and time of the loss as precisely as possible.
  • Do describe the cause of the loss clearly and in detail.
  • Don't omit any information that may be relevant to the claim.
  • Don't provide misleading or incomplete information, as this could be considered fraud.
  • Don't forget to sign and date the form before submission.
  • Don't ignore the requirement to disclose any other insurance policies that may cover the loss.
  • Don't submit the form without attaching any necessary documentation or receipts related to the loss.

Misconceptions

Understanding the Florida Proof of Loss form can be challenging. Here are six common misconceptions about this important document:

  • Misconception 1: The form is optional.
  • Some people believe that submitting the Proof of Loss form is optional. In reality, most insurance companies require this form to process a claim. Failing to submit it can delay or even deny your claim.

  • Misconception 2: All information can be estimated.
  • Many assume that they can provide rough estimates for damages. However, the form requires accurate and truthful information. Providing misleading or incomplete information can lead to severe penalties.

  • Misconception 3: You can submit the form after a long delay.
  • Some think they can take their time with the submission. Insurance policies often have specific time frames for filing the Proof of Loss. Delaying submission can jeopardize your claim.

  • Misconception 4: The form is only for property damage claims.
  • While it primarily addresses property damage, the form can also apply to loss of personal belongings and additional living expenses. It’s essential to include all relevant losses.

  • Misconception 5: You don’t need to involve a notary.
  • Some individuals believe that notarization isn’t necessary. However, the form must be sworn and notarized to be valid. This adds a layer of authenticity to your claim.

  • Misconception 6: Once submitted, the claim is guaranteed to be paid.
  • Many people think that submitting the form guarantees payment. This is not the case. The insurance company will review the claim and determine if it meets the policy’s terms and conditions.

Key takeaways

When filling out and using the Florida Proof of Loss form, consider the following key takeaways:

  • Accuracy is Essential: Ensure all information provided is truthful and complete. Any misleading or false information can lead to serious legal consequences, including felony charges.
  • Document All Details: Include specific information such as the date and time of loss, cause of loss, and details about any other insurance policies that may cover the loss.
  • Understand Your Coverage: Clearly state the total amount of insurance on the property at the time of loss and the actual cash value of the property to substantiate your claim.
  • Signature Requirement: The form must be signed by the insured. It is also advisable to have the document notarized to verify authenticity.