Get Erc Broker Market Analysis Form

Get Erc Broker Market Analysis Form

The Worldwide ERC® Broker’s Market Analysis and Strategy Report is a vital tool for real estate brokers. It assists in assessing a property's condition, its competition, and its potential marketability, ultimately helping to estimate the Most Likely Sales Price. This analysis is distinct from a home inspection or appraisal and is not intended for those purposes.

To get started on your analysis, please fill out the form by clicking the button below.

Structure

The Worldwide ERC® Broker’s Market Analysis and Strategy Report serves as a crucial tool for real estate brokers looking to assess a property’s market position. This form is not merely an appraisal or home inspection; rather, it focuses on evaluating the subject property’s condition, competitive landscape, and potential for future marketability. By conducting a thorough analysis, brokers can estimate the Most Likely Sales Price (MLSP) based on the property’s “as is” condition and a marketing timeframe of up to 120 days. It's essential for brokers to be aware of any state-specific disclosure requirements and to incorporate them into their analysis. The form guides users through procedural steps, including contacting the homeowner, inspecting the property, and submitting the report with relevant photos. Additionally, it prompts brokers to gather detailed information about the property, such as its location, improvements made, and any locational issues that may affect its insurability. This comprehensive approach not only aids in determining the property’s value but also enhances the broker's strategy for marketing and selling the property effectively.

Erc Broker Market Analysis Preview

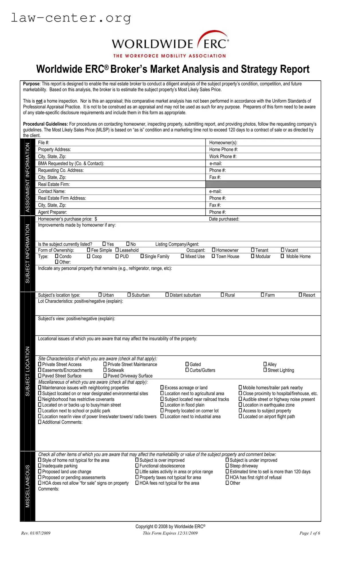
Worldwide ERC® Broker’s Market Analysis and Strategy Report

Purpose: This report is designed to enable the real estate broker to conduct a diligent analysis of the subject property’s condition, competition, and future marketability. Based on this analysis, the broker is to estimate the subject property’s Most Likely Sales Price.

This is not a home inspection. Nor is this an appraisal; this comparative market analysis has not been performed in accordance with the Uniform Standards of Professional Appraisal Practice. It is not to be construed as an appraisal and may not be used as such for any purpose. Preparers of this form need to be aware of any state-specific disclosure requirements and include them in this form as appropriate.

Procedural Guidelines: For procedures on contacting homeowner, inspecting property, submitting report, and providing photos, follow the requesting company’s guidelines. The Most Likely Sales Price (MLSP) is based on “as is” condition and a marketing time not to exceed 120 days to a contract of sale or as directed by the client.

 

INFORMATION

 

File #:

 

 

 

 

 

 

 

Homeowner(s):

 

 

 

 

Property Address:

 

 

 

 

 

 

 

Home Phone #:

 

 

 

 

City, State, Zip:

 

 

 

 

 

 

 

Work Phone #:

 

 

 

 

 

 

 

 

 

 

 

 

 

 

 

BMA Requested by (Co. & Contact):

 

 

 

 

 

e-mail:

 

 

 

 

Requesting Co. Address:

 

 

 

 

 

 

 

Phone #:

 

 

 

 

City, State, Zip:

 

 

 

 

 

 

 

Fax #:

 

 

 

ASSIGNMENT

 

 

 

 

 

 

 

 

 

 

 

 

 

 

 

 

 

 

 

 

 

 

 

 

 

Real Estate Firm:

 

 

 

 

 

 

 

 

 

 

 

 

Contact Name:

 

 

 

 

 

 

 

e-mail:

 

 

 

 

Real Estate Firm Address:

 

 

 

 

 

 

 

Phone #:

 

 

 

 

 

 

 

 

 

 

 

 

 

 

 

 

 

City, State, Zip:

 

 

 

 

 

 

 

Fax #:

 

 

 

 

Agent Preparer:

 

 

 

 

 

 

 

Phone #:

 

 

 

 

 

 

 

 

 

 

 

 

 

 

 

 

 

 

 

Homeowner’s purchase price: $

 

 

 

 

 

 

Date purchased:

 

 

 

INFORMATION

 

 

Improvements made by homeowner if any:

 

 

 

 

 

 

 

 

 

 

 

 

 

 

 

 

 

 

 

 

 

 

Is the subject currently listed?

□ Yes

□ No

 

Listing Company/Agent:

 

 

 

 

 

 

 

Form of Ownership:

□ Fee Simple

□ Leasehold

 

 

Occupant:

 

□ Homeowner

□ Tenant

□ Vacant

 

 

 

Type: □ Condo

Coop

PUD

Single Family

Mixed Use

 

Town House

Modular

Mobile Home

 

SUBJECT

 

 

□ Other:

 

 

 

 

 

 

 

 

 

 

 

 

 

Indicate any personal property that remains (e.g., refrigerator, range, etc):

 

 

 

 

 

 

 

 

 

 

 

 

 

 

 

 

 

 

 

 

 

 

 

 

 

 

 

 

 

 

 

 

 

 

 

 

Subject’s location type:

 

Urban

Suburban

Distant suburban

 

Rural

Farm

Resort

 

 

 

 

Lot Characteristics: positive/negative (explain):

 

 

 

 

 

 

 

 

 

 

 

 

 

 

 

 

 

 

 

 

 

 

 

 

Subject’s view: positive/negative (explain):

 

 

 

 

 

 

 

 

Locational issues OF WHICH you are aware that may affect the insurability of the property:

LOCATION

Site Characteristics of which you are aware (check all that apply):

 

 

Private Street Access

Private Street Maintenance

Gated

Alley

Easements/Encroachments

Sidewalk

Curbs/Gutters

Street Lighting

SUBJECT

Paved Street Surface

Paved Driveway Surface

 

 

Miscellaneous of which you are aware (check all that apply):

 

 

Maintenance issues with neighboring properties

Excess acreage or land

Mobile homes/trailer park nearby

Subject located on or near designated environmental sites

Location next to agricultural area

Close proximity to hospital/firehouse, etc.

 

Neighborhood has restrictive covenants

Subject located near railroad tracks

Audible street or highway noise present

 

Located on or backs up to busy/main street

Location in flood plain

Location in earthquake zone

 

Location next to school or public park

Property located on corner lot

Access to subject property

 

Location near/in view of power lines/water towers/ radio towers

Location next to industrial area

Located on airport flight path

 

Additional Comments:

 

 

 

Check all other items of which you are aware that may affect the marketability or value of the subject property and comment below:

 

Style of home not typical for the area

Subject is over improved

Subject is under improved

MISCELLANEOUS

Inadequate parking

Functional obsolescence

Steep driveway

Proposed land use change

Little sales activity in area or price range

Estimated time to sell is more than 120 days

Proposed or pending assessments

Property taxes not typical for area

HOA has first right of refusal

HOA does not allow “for sale” signs on property

HOA fees not typical for the area

Other

Comments:

 

 

 

 

 

Copyright © 2008 by Worldwide ERC®

Rev. 01/07/2009

This Form Expires 12/31/2009

Page 1 of 6

SUBJECT CONDITION

INSPECTIONS/DISCLOSURES

Property Condition

For all the following of which you are aware or observe in viewing the property, check the appropriate box(es) and describe:

Décor of home is personalized or dated:

Incomplete construction:

Evidence of past or present water damage:

Cracks or stains on walls, floors, or ceilings:

Oil tank (abandoned):

Oil tank (in use):

Underground storage tank (abandoned):

Underground storage tank (in use):

Synthetic stucco:

Suspected structural problems:

Evidence of odor:

Evidence of pet damage:

Evidence of deferred maintenance: Additional Comments:

Recommended Repairs and Improvements

 

 

Interior Items

 

 

R&I Estimates

□ Paint

Estimated cost per item: $

Comment:

□ Flooring

Estimated cost per item: $

Comment:

□ Wall paper removal

Estimated cost per item: $

Comment:

□ Appliances

Estimated cost per item: $

Comment:

□ Cabinets

Estimated cost per item: $

Comment:

□ Light fixtures

Estimated cost per item: $

Comment:

□ Countertops

Estimated cost per item: $

Comment:

□ Bathroom fixtures

Estimated cost per item: $

Comment:

□ Other:

Estimated cost per item: $

Comment:

□ Other:

Estimated cost per item: $

Comment:

□ Other:

Estimated cost per item: $

Comment:

Total Estimated Cost for Interior Repairs

$

 

 

 

 

Exterior Items

 

 

R&I Estimates

□ Landscaping

Estimated cost per item: $

Comment:

□ Paint

Estimated cost per item: $

Comment:

□ Driveway/walkway

Estimated cost per item: $

Comment:

□ Porch/deck

Estimated cost per item: $

Comment:

□ Pool

Estimated cost per item: $

Comment:

□ Spa

Estimated cost per item :$

Comment:

□ Gutters

Estimated cost per item: $

Comment:

□ Siding

Estimated cost per item: $

Comment:

□ Trim

Estimated cost per item: $

Comment:

□ Roof

Estimated cost per item: $

Comment:

□ Detached structures

Estimated cost per item: $

Comment:

□ Debris removal

Estimated cost per item: $

Comment:

□ Windows and screens

Estimated cost per item: $

Comment:

□ Other:

Estimated cost per item: $

Comment:

□ Other:

Estimated cost per item: $

Comment:

□ Other:

Estimated cost per item: $

Comment:

Total Estimated Cost for Exterior RepairS

$

 

List all required, customary and additionally recommended inspections (e.g., municipal, certificate of occupancy, environmental, etc.): Required:

Customary:

Additionally recommended for the subject property:

Subject property issues OF WHICH you are aware that may affect insurability of the subject property:

List all required disclosures:

Copyright © 2008 by Worldwide ERC®

Rev. 01/07/2009

This Form Expires 12/31/2009

Page 2 of 6

 

 

Identify the most probable means of financing for the subject:

FHA

VA

Cash

Conventional mortgage—conforming or jumbo

 

 

Other:

 

 

 

 

 

 

 

 

 

 

 

 

 

 

 

 

 

 

 

 

 

 

 

 

 

 

 

Describe the terms of the financing type identified above:

 

 

 

 

 

 

 

 

 

 

 

 

 

 

 

 

 

 

 

 

 

 

 

 

 

 

 

 

 

 

 

 

 

 

 

 

 

 

 

 

Identify and describe any financing concessions that may be necessary to secure the sale of the subject property.

 

 

 

 

 

 

 

 

 

 

 

Points:

 

 

 

 

 

 

 

 

 

 

 

 

 

 

 

 

 

 

 

 

 

 

 

 

 

 

 

 

 

 

 

 

 

 

 

 

 

 

 

 

 

 

 

 

 

 

 

 

 

 

 

 

 

 

 

 

 

Closing Costs:

 

 

 

 

 

 

 

 

 

 

 

 

 

 

 

 

 

 

 

 

 

 

 

 

 

 

 

 

 

 

 

 

 

 

 

 

 

 

 

 

 

 

 

 

 

 

 

 

 

 

 

 

 

 

 

 

 

Other:

 

 

 

 

 

 

 

 

 

 

 

 

 

 

 

 

 

 

 

 

 

 

 

 

 

FINANCING

 

 

 

 

 

 

 

 

 

 

 

 

 

 

 

 

 

 

 

 

 

 

Do you anticipate any issues that may affect the ability to secure financing for the subject property (e.g., condition, zoning, environmental, HOA, etc.)?

 

Yes No

If yes, comment:

 

 

 

 

 

 

 

 

 

 

 

 

 

 

 

 

 

 

 

 

 

 

 

 

 

 

 

 

 

 

 

 

 

 

 

 

 

 

 

 

 

 

 

 

 

 

 

 

 

 

 

 

 

 

 

 

 

 

 

 

 

 

 

 

 

 

 

 

 

 

 

If the subject property is a common interest development (e.g., condo, townhouse, PUD), what is the ratio of owners to investors?

 

N/A

 

 

 

 

 

 

Owners:

%

Investors:

%

(total MUST equal 100%)

 

 

 

 

 

 

 

 

 

 

 

 

 

 

 

 

 

 

 

 

 

 

 

 

 

 

 

 

 

 

 

 

 

 

 

 

 

 

 

 

 

 

 

HOA Fees: $

 

 

 

 

How often are they paid?

 

Monthly

Quarterly

 

Semi-annually

Annually

 

 

 

 

 

 

 

 

 

 

 

 

 

 

 

 

 

 

 

 

 

 

 

 

 

 

 

 

 

 

 

 

Items included in HOA Fees: Trash Pick-up

 

 

 

 

Landscaping

Snow Removal

Exterior Building Maintenance

 

 

 

 

 

 

 

 

Security/Concierge Services

Insurance

Taxes

 

Amenities

 

 

 

 

 

 

 

 

 

 

 

 

 

 

Common Area Maintenance

WATER

 

 

SEWER

 

 

 

 

 

 

 

 

 

 

 

 

 

 

 

 

 

 

Other:

 

 

 

 

 

 

 

 

 

 

 

 

 

 

 

 

 

 

 

 

Are you aware of any special assessments covered by the HOA?

Yes

No

 

 

 

 

 

 

 

 

 

 

 

If yes, indicate the amount of assessment: $

 

 

 

 

 

 

 

 

 

 

 

 

 

 

 

 

 

 

 

 

Describe what the special assessment covers:

 

 

 

 

 

 

 

 

 

 

 

 

 

 

 

 

 

 

 

 

 

 

 

 

 

 

 

 

 

 

 

 

 

 

 

 

 

 

 

 

 

 

Subject Neighborhood (For purposes of this report, the subject neighborhood is defined by the preparer of this form. Identify what you regard as the

 

 

subject neighborhood and then use statistics that you have gathered which reflect that market area. Note: the neighborhood might be a MLS area, a

 

 

particular section of a town, a specific subdivision, or an entire community. This is described as the “micro area.”)

 

 

 

 

 

 

 

 

 

 

 

Subject neighborhood is defined as:

 

 

 

 

 

 

 

 

 

 

 

 

 

 

 

 

 

 

 

 

 

 

 

 

 

 

 

 

 

 

 

 

 

 

 

 

 

 

 

 

 

 

 

 

 

 

 

 

Price Range: $

 

 

 

 

 

 

to $

 

 

 

 

 

 

 

Property Values are: Increasing

% in past

 

months

 

 

 

 

 

 

 

 

 

 

 

 

 

 

 

 

 

 

 

 

Stable

 

 

 

 

 

 

 

 

 

Average Days-on-Market (list to contract)

 

 

 

days

 

 

 

 

 

 

 

 

 

 

 

 

 

 

 

 

 

Decreasing

 

 

 

 

 

 

 

 

 

 

 

 

 

 

 

 

 

(# of days)

 

 

 

 

 

% in past

months

 

 

 

 

 

 

 

 

 

 

 

 

 

 

 

 

 

 

 

 

 

 

 

 

 

 

 

 

 

 

 

 

Calculate the months supply of inventory (Absorption Rate):

 

 

 

Type of competing listings

 

 

 

 

 

 

 

 

 

 

 

 

 

 

 

 

 

 

 

 

 

 

 

 

 

 

 

 

 

 

 

 

 

 

 

 

 

 

 

 

 

 

 

 

 

 

 

 

 

 

 

 

 

 

 

 

 

 

 

 

 

 

 

 

 

 

 

 

 

 

 

 

 

 

 

 

 

 

 

 

 

 

 

 

 

 

New Homes

 

 

 

 

 

 

%

 

 

 

 

 

 

 

 

 

 

 

 

 

 

 

 

 

 

 

 

Resale

 

 

 

 

 

 

%

 

 

 

Number of active listings ÷

Avg. number of sales per month

=

Number of months needed

 

 

 

 

 

 

 

 

 

 

 

 

REO/Foreclosure

 

 

 

 

 

%

 

 

 

 

 

 

 

 

 

 

for the last 6 months

 

 

 

 

to sell existing inventory

 

 

 

 

 

 

 

 

 

 

 

 

 

 

 

 

 

 

 

Corporate

 

 

 

 

 

 

%

 

 

 

 

 

 

 

 

 

 

 

 

 

 

 

 

 

 

 

 

 

 

 

 

 

 

 

 

 

 

 

 

 

 

 

 

 

 

 

 

 

 

 

 

 

 

Total (MUST equal 100%)

 

 

 

 

 

100%

 

 

 

Describe all marketing concessions/incentives being offered to buyers and/or brokers on competing properties:

 

 

 

 

 

 

 

 

 

 

 

 

 

 

 

 

 

 

 

 

 

 

 

 

 

 

 

 

 

 

 

 

CONDITIONS

 

Recommend any marketing concessions/incentives that should be offered for the subject:

 

 

 

 

 

 

 

 

 

 

 

 

 

 

 

 

 

 

 

 

 

 

 

 

 

 

 

 

 

 

 

 

 

 

 

 

 

 

 

MARKET

 

Describe major corporation(s) in this neighborhood that are moving into, out of, or planning layoffs:

 

 

 

 

 

 

 

 

 

 

 

 

 

 

 

 

 

 

 

 

 

 

 

 

 

 

 

 

 

 

 

 

 

 

 

 

 

 

 

 

 

 

 

 

 

 

 

 

 

 

 

 

 

 

 

 

 

 

 

 

 

 

Describe current economic conditions (positive or negative) that may have an Effect on the marketability of the property:

 

 

 

 

 

 

 

 

 

 

 

 

 

 

 

 

 

 

 

 

 

 

 

 

 

 

 

 

Broader Market Area (For purposes of this report, the broader market area is defined as that area beyond the subject neighborhood in which buyers will

 

 

look for comparable properties. This is described as the “macro area.” In some instances, the broader market area will be the same as the subject’s

 

 

neighborhood. If this is the case, indicate it below.)

What do you consider the “broader market area” to be for this property?

 

 

 

 

 

 

Are there any specific issues in the broader market area which are not reflected in the specific neighborhood that might affect the sale of the subject property? Consider types of competing homes (e.g., new construction, REO’s); incentives or concessions that are occurring; economic conditions; a dramatically different price range than the subject; days on market; etc.

Copyright © 2008 by Worldwide ERC®

Rev. 01/07/2009

This Form Expire 12/31/2009

Page 3 of 6

Document Data

Fact Name Description
Purpose The form is designed for real estate brokers to analyze a property's condition, competition, and marketability.
Sales Price Estimation It helps brokers estimate the Most Likely Sales Price (MLSP) of the property based on its "as is" condition.
Not an Appraisal This report is not an appraisal and should not be used as one for any purpose.
State-Specific Requirements Preparers must consider and include any state-specific disclosure requirements relevant to the property.
Inspection Guidelines Procedures for contacting the homeowner and inspecting the property must follow the requesting company's guidelines.
Marketing Time Frame The MLSP is based on a marketing time not exceeding 120 days unless directed otherwise by the client.
Property Condition Disclosure It includes a checklist for disclosing the property's condition, such as water damage or structural issues.
Financing Options The form identifies potential financing options for the property, including FHA, VA, and conventional loans.
Neighborhood Analysis It requires a description of the subject neighborhood and broader market area, including property values and trends.
Expiration Date The form has an expiration date of December 31, 2009, indicating that it is no longer valid after this date.

How to Use Erc Broker Market Analysis

Filling out the ERC Broker Market Analysis form is a detailed process that requires careful attention to various aspects of the property in question. This form will guide you in assessing the property’s condition, competition, and marketability. Below are the steps to effectively complete the form.

  1. Gather necessary information about the property and the homeowner, including the file number, homeowner's name, property address, and contact details.
  2. Identify the real estate firm and the agent preparing the report, including their contact information.
  3. Document the purchase price and date of the property, along with any improvements made by the homeowner.
  4. Indicate whether the property is currently listed and provide details about the listing company or agent.
  5. Specify the form of ownership, occupancy status, and type of property (e.g., single-family home, condo).
  6. Describe the location type and any personal property that will remain with the sale.
  7. Assess the lot characteristics and view, noting any positive or negative aspects.
  8. List any locational issues that may affect the insurability of the property.
  9. Check site characteristics that apply, such as private street access or easements.
  10. Document miscellaneous issues that may impact the property’s marketability or value.
  11. Evaluate the property condition and check any relevant boxes regarding issues observed during the inspection.
  12. Estimate the costs for recommended repairs and improvements, both interior and exterior.
  13. List all required and customary inspections needed for the property.
  14. Identify potential financing options and any issues that may affect securing financing.
  15. Define the subject neighborhood, including price ranges and property value trends.
  16. Calculate the months supply of inventory based on competing listings.
  17. Describe marketing concessions or incentives offered for competing properties.
  18. Assess the broader market area and any specific issues that may affect the sale of the property.
  19. Complete the comparable sales section by documenting details about similar properties sold recently.

Once the form is filled out, it will be submitted according to the requesting company’s guidelines. Ensure all information is accurate and thorough, as this will contribute to a well-informed market analysis.

Key Facts about Erc Broker Market Analysis

What is the purpose of the ERC Broker Market Analysis form?

The ERC Broker Market Analysis form is designed to help real estate brokers conduct a thorough analysis of a property's condition, competition, and future marketability. By utilizing this form, brokers can estimate the property's Most Likely Sales Price (MLSP). It's important to note that this analysis is not an appraisal or a home inspection.

What information is required to complete the form?

To complete the form, brokers must provide details about the property, including the homeowner's information, property address, and contact numbers. Additionally, information regarding the real estate firm, property conditions, improvements made, and any relevant neighborhood characteristics should be included.

What is the Most Likely Sales Price (MLSP) based on?

The MLSP is determined based on the property's "as is" condition and assumes a marketing time not exceeding 120 days for a contract of sale. Brokers should base their estimates on the current market conditions and comparable properties.

Are there any specific guidelines for using this form?

Yes, brokers should adhere to the procedural guidelines set by the requesting company. This includes how to contact the homeowner, inspect the property, submit the report, and provide any necessary photos. Additionally, brokers must be aware of and include any state-specific disclosure requirements.

Can the ERC Broker Market Analysis form be used as an appraisal?

No, the ERC Broker Market Analysis form is not an appraisal and should not be used as such. It is a comparative market analysis that does not conform to the Uniform Standards of Professional Appraisal Practice.

What should be included in the property condition section?

The property condition section requires brokers to check off any issues they are aware of or observe during their inspection. This may include signs of water damage, structural problems, or deferred maintenance. Brokers should provide comments to elaborate on any checked items.

What types of financing options should be identified in the form?

Brokers should identify the most probable means of financing for the subject property, which may include FHA, VA, cash, or conventional mortgage options. They should also describe any financing concessions that may be necessary to secure the sale.

How should neighborhood conditions be reported?

Neighborhood conditions should be described in terms of property values, average days on market, and any major corporations moving in or out of the area. Brokers should also comment on current economic conditions that could impact marketability.

What are the implications of HOA fees in the analysis?

HOA fees should be reported in the analysis, including the amount, payment frequency, and what services are covered. Brokers should also note any special assessments that the HOA may impose, as these can affect the property's marketability.

What should brokers do if they anticipate financing issues?

If brokers anticipate any issues that may affect financing—such as zoning, environmental concerns, or HOA restrictions—they should indicate this on the form and provide comments to explain the potential impact on the sale.

Common mistakes

Completing the ERC Broker Market Analysis form can be a detailed process, and it’s easy to make mistakes that could affect the accuracy of the report. One common error is not providing complete or accurate information about the property. For instance, failing to include the homeowner's contact details or the property address can lead to delays and miscommunication. Ensure that all fields are filled out thoroughly to avoid complications.

Another frequent mistake is overlooking state-specific disclosure requirements. Each state has its own regulations regarding property disclosures, and neglecting to include this information can result in legal issues down the line. Always check your state’s requirements and make sure to incorporate them into the form as needed.

Additionally, many individuals underestimate the importance of the property condition section. This area requires careful observation and detail. Failing to note issues such as water damage, structural problems, or deferred maintenance can mislead potential buyers about the property’s true condition. Be diligent in documenting any concerns that could affect marketability.

Another area where mistakes often occur is in estimating the Most Likely Sales Price (MLSP). Relying solely on outdated comparables or neglecting to consider the current market conditions can skew the price estimation. It’s essential to use recent sales data and analyze current market trends to arrive at a realistic and competitive price.

Lastly, many brokers forget to provide sufficient marketing insights. The analysis should include details about competing listings, local economic conditions, and any marketing concessions being offered. This information is crucial for understanding the property's position in the market. A well-rounded analysis will help in presenting a more compelling case to potential buyers.

Documents used along the form

The ERC Broker Market Analysis form serves as a crucial tool for real estate brokers to evaluate properties and determine their market value. However, it is often accompanied by several other important documents that provide additional insights and support for the analysis. Below is a list of documents commonly used alongside the ERC Broker Market Analysis form, each with a brief description.

  • Comparative Market Analysis (CMA): A CMA provides a detailed comparison of similar properties that have recently sold in the area. It helps establish a price range for the subject property based on real market data.
  • Property Disclosure Statement: This document outlines known issues or defects with the property that the seller must disclose to potential buyers. It promotes transparency and protects all parties involved.
  • Listing Agreement: This contract between the property owner and the real estate broker outlines the terms of the broker's representation, including the listing price and duration of the agreement.
  • Home Inspection Report: Conducted by a licensed inspector, this report details the condition of the property, identifying any necessary repairs or maintenance that may impact its value.
  • Appraisal Report: An appraisal is an unbiased assessment of a property's value conducted by a licensed appraiser. It provides a formal valuation that can be used for financing or sale purposes.
  • Financing Pre-Approval Letter: This letter from a lender indicates that a buyer has been pre-approved for a loan, which can enhance the buyer's negotiating position and expedite the sale process.
  • Market Trends Report: This report analyzes current market conditions, including supply and demand, pricing trends, and economic factors that could affect property values in the area.
  • Neighborhood Profile: A document that provides insights into the neighborhood's demographics, amenities, schools, and local attractions, helping potential buyers understand the community.
  • Marketing Plan: This outlines the strategies the broker will use to promote the property. It may include online listings, open houses, and targeted advertising to attract potential buyers.

These documents collectively enhance the broker's ability to provide a comprehensive analysis of the property, ensuring that both sellers and buyers are well-informed throughout the transaction process.

Similar forms

  • Comparative Market Analysis (CMA): Like the Erc Broker Market Analysis form, a CMA assesses a property's value based on recent sales of similar properties in the area. Both documents aim to provide a realistic estimate of a property's market value, helping sellers and buyers make informed decisions.
  • Property Condition Report: This report focuses on the physical condition of a property, detailing any issues that may affect its value. Similar to the Erc form, it includes observations about the property's condition, but it may not provide a price estimate.
  • Appraisal Report: While an appraisal is a formal assessment of a property's value conducted by a licensed appraiser, it shares the goal of estimating a property's market value. However, the appraisal follows strict guidelines and standards, unlike the Erc form, which is more of a preliminary analysis.
  • Home Inspection Report: This document evaluates the condition of a home, identifying any defects or necessary repairs. While the Erc form includes some inspection elements, it primarily focuses on marketability and pricing rather than detailed structural assessments.
  • Listing Agreement: This contract between a property owner and a real estate agent outlines the terms of the property sale. Both documents relate to the selling process, but the Erc form specifically analyzes market conditions and pricing strategies, while the listing agreement formalizes the relationship between the seller and the agent.

Dos and Don'ts

When filling out the ERC Broker Market Analysis form, it is essential to approach the task with care and attention to detail. Here are four key dos and don’ts to keep in mind:

  • Do ensure all required fields are completed accurately, including homeowner information and property details.
  • Do follow the procedural guidelines provided by the requesting company for contacting homeowners and inspecting properties.
  • Don’t make assumptions about the property’s condition; observe and report only what you can confirm.
  • Don’t forget to check for any state-specific disclosure requirements that must be included in the form.

Misconceptions

  • Misconception 1: The Erc Broker Market Analysis form is an appraisal.
  • This form is not an appraisal. It serves as a comparative market analysis, which is distinct from an appraisal that adheres to specific professional standards. The analysis provided is meant to estimate the Most Likely Sales Price based on market conditions, not to determine the property’s value in a formal appraisal context.

  • Misconception 2: The form includes a home inspection.
  • The Erc Broker Market Analysis form does not replace a home inspection. While it may include observations about the property’s condition, it is not intended to provide a detailed inspection report. Home inspections require a different level of scrutiny and expertise.

  • Misconception 3: The Most Likely Sales Price (MLSP) is guaranteed.
  • The MLSP is an estimate based on current market conditions and the property’s condition. It is not a guaranteed sale price, as many factors can influence the final sale, including market fluctuations and buyer interest.

  • Misconception 4: The form is applicable in all states without modification.
  • This form may require adjustments based on state-specific disclosure requirements. It is essential for brokers to be aware of these regulations and ensure that the form complies with local laws.

  • Misconception 5: The analysis is only for residential properties.
  • While the form is often used for residential properties, it can also apply to various property types, including commercial and mixed-use properties. The analysis can be adapted to fit different property categories as needed.

  • Misconception 6: The form must be filled out in a specific format.
  • The Erc Broker Market Analysis form allows for flexibility in how information is presented. While certain sections need to be completed, brokers can provide comments and details in a manner that best reflects the property and market conditions.

  • Misconception 7: The form is outdated and no longer relevant.
  • Although the copyright dates back to 2008, the principles and guidelines outlined in the form remain applicable. Market analysis techniques evolve, but the foundational elements of conducting a comparative market analysis still hold true.

Key takeaways

  • Purpose of the Form: The ERC Broker Market Analysis form assists real estate brokers in analyzing a property's condition, competition, and marketability to estimate its Most Likely Sales Price (MLSP).
  • Not an Appraisal: This report is not a home inspection or an appraisal and should not be used as such. It does not adhere to the Uniform Standards of Professional Appraisal Practice.
  • State-Specific Requirements: Brokers must consider any state-specific disclosure requirements and include them in the form as necessary.
  • Contact Procedures: Follow the guidelines provided by the requesting company for contacting the homeowner, inspecting the property, and submitting the report.
  • Sales Price Estimation: The MLSP is based on the property's "as is" condition and assumes a marketing time not exceeding 120 days, unless otherwise directed by the client.
  • Detailed Information Collection: The form requires comprehensive details about the property, including homeowner information, property address, and contact numbers.
  • Property Condition Disclosure: Brokers must check and describe any known issues with the property, such as water damage, structural problems, or maintenance issues.
  • Required Inspections: List all necessary inspections that may be required for the property, including municipal and environmental assessments.
  • Financing Considerations: Identify the probable means of financing for the property and any potential issues that may arise in securing financing.
  • Market Analysis: The form includes sections for analyzing the subject neighborhood and broader market area, considering factors like price trends and competition.