Get Chicago Title Waiver Format Form

Get Chicago Title Waiver Format Form

The Chicago Title Waiver Format form is a vital document used in the construction industry to release any claims or liens against a property. This form ensures that contractors and subcontractors receive their payments while providing property owners peace of mind that no additional claims will arise from unpaid work. Understanding how to fill out this form accurately is essential for all parties involved in a construction project.

To get started, please fill out the form by clicking the button below.

Structure

The Chicago Title Waiver Format form is an essential document in the construction and real estate sectors, particularly in Illinois. This form serves to protect property owners by ensuring that contractors and subcontractors waive their rights to file mechanics' liens against a property. By doing so, it helps maintain clear title and ownership for the property owner. The form includes critical details such as the names of the parties involved, the property address, and the total contract amount, including any extras that may have been agreed upon. It also requires a declaration from the contractor, affirming that all payments have been made and that no further claims exist against the property. This transparency is vital for both the property owner and the contractors involved, as it reduces the risk of disputes and enhances trust in the transaction. Additionally, the form must be notarized, adding a layer of legal validation to the waivers provided. Understanding the nuances of this form is crucial for anyone involved in property transactions or construction projects in Illinois.

Chicago Title Waiver Format Preview

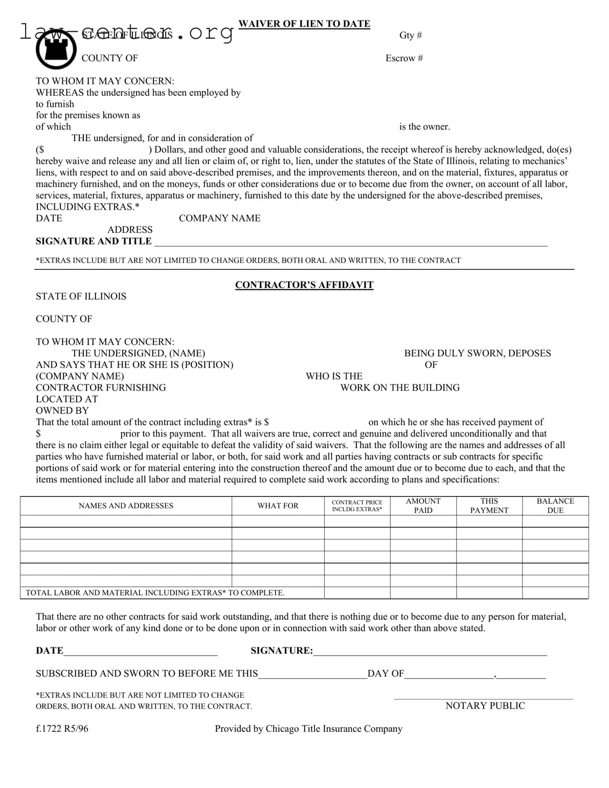
COMPANY NAME

WAIVER OF LIEN TO DATE

 

S STATE OF ILLINOIS

Gty #

COUNTY OF

Escrow #

TO WHOM IT MAY CONCERN:

 

WHEREAS the undersigned has been employed by

 

to furnish

 

for the premises known as

 

of which

is the owner.

THE undersigned, for and in consideration of

($) Dollars, and other good and valuable considerations, the receipt whereof is hereby acknowledged, do(es) hereby waive and release any and all lien or claim of, or right to, lien, under the statutes of the State of Illinois, relating to mechanics’ liens, with respect to and on said above-described premises, and the improvements thereon, and on the material, fixtures, apparatus or machinery furnished, and on the moneys, funds or other considerations due or to become due from the owner, on account of all labor, services, material, fixtures, apparatus or machinery, furnished to this date by the undersigned for the above-described premises,

INCLUDING EXTRAS.* DATE

ADDRESS

SIGNATURE AND TITLE _______________________________________________________________________________

*EXTRAS INCLUDE BUT ARE NOT LIMITED TO CHANGE ORDERS, BOTH ORAL AND WRITTEN, TO THE CONTRACT

CONTRACTOR’S AFFIDAVIT

STATE OF ILLINOIS

COUNTY OF

 

TO WHOM IT MAY CONCERN:

 

THE UNDERSIGNED, (NAME)

BEING DULY SWORN, DEPOSES

AND SAYS THAT HE OR SHE IS (POSITION)

OF

(COMPANY NAME)

WHO IS THE

CONTRACTOR FURNISHING

WORK ON THE BUILDING

LOCATED AT

 

OWNED BY

 

That the total amount of the contract including extras* is $

on which he or she has received payment of

$prior to this payment. That all waivers are true, correct and genuine and delivered unconditionally and that there is no claim either legal or equitable to defeat the validity of said waivers. That the following are the names and addresses of all parties who have furnished material or labor, or both, for said work and all parties having contracts or sub contracts for specific portions of said work or for material entering into the construction thereof and the amount due or to become due to each, and that the items mentioned include all labor and material required to complete said work according to plans and specifications:

NAMES AND ADDRESSES

WHAT FOR

CONTRACT PRICE INCLDG EXTRAS*

AMOUNT

PAID

THIS

PAYMENT

BALANCE

DUE

TOTAL LABOR AND MATERIAL INCLUDING EXTRAS* TO COMPLETE.

That there are no other contracts for said work outstanding, and that there is nothing due or to become due to any person for material, labor or other work of any kind done or to be done upon or in connection with said work other than above stated.

DATE_______________________________

SIGNATURE:_______________________________________________

SUBSCRIBED AND SWORN TO BEFORE ME THIS______________________DAY OF__________________,__________

*EXTRAS INCLUDE BUT ARE NOT LIMITED TO CHANGE

 

_____________________________________________

ORDERS, BOTH ORAL AND WRITTEN, TO THE CONTRACT.

NOTARY PUBLIC

f.1722 R5/96

Provided by Chicago Title Insurance Company

Document Data

Fact Name Description
Document Purpose The Chicago Title Waiver Format form is designed to waive and release any lien claims related to mechanics' liens for specific premises in Illinois.
Governing Law This form operates under the statutes of the State of Illinois, particularly those related to mechanics' liens.
Consideration The undersigned acknowledges receipt of a specified amount of money or other valuable considerations in exchange for the waiver.
Parties Involved The form requires information about the contractor, owner, and any subcontractors or suppliers involved in the project.
Extras Definition Extras, as defined in the form, include but are not limited to change orders, both oral and written, related to the contract.
Affidavit Requirement A contractor’s affidavit must be completed, affirming that all waivers are genuine and that no other claims exist against the payment.
Notarization The form must be notarized, ensuring the authenticity of the signatures and the statements made within the document.

How to Use Chicago Title Waiver Format

Filling out the Chicago Title Waiver Format form requires careful attention to detail. Each section must be completed accurately to ensure that the waiver is valid and enforceable. After filling out the form, it will be necessary to submit it to the appropriate parties as part of the contractual obligations related to the project.

  1. Company Name: Write the name of the company providing the waiver at the top of the form.
  2. Date: Enter the date on which the waiver is being executed.
  3. State and County: Indicate the state (Illinois) and the county where the project is located.
  4. Escrow Number: Fill in the escrow number associated with the transaction.
  5. To Whom It May Concern: Leave a space for the recipient's name or title.
  6. Undersigned: Insert the name of the undersigned party who is waiving the lien.
  7. Owner Information: Specify the owner of the premises where work has been performed.
  8. Consideration Amount: State the amount in dollars that is being paid in exchange for the waiver.
  9. Premises Description: Provide a description of the premises related to the waiver.
  10. Date: Re-enter the date in the designated area for the signature.
  11. Address: Write the address of the undersigned party.
  12. Signature and Title: Sign the form and include the title of the undersigned party.
  13. Contractor’s Affidavit Section: Complete the contractor's affidavit by providing the contractor's name, position, and company name.
  14. Building Location: Write the address of the building where work was performed.
  15. Contract Amount: State the total amount of the contract, including extras.
  16. Payment Received: Indicate the amount already received prior to this payment.
  17. Names and Addresses: List the names and addresses of all parties who have furnished labor or materials.
  18. Contract Price: Specify the contract price, including extras, for each listed party.
  19. Amount Paid: Enter the amount paid to each party listed.
  20. Balance Due: Indicate the balance due to each party.
  21. Total Labor and Material: Provide the total amount required to complete the work.
  22. Affidavit Signature: Sign the affidavit section and include the date.
  23. Notary Public: Leave space for the notary public’s signature and seal.

Key Facts about Chicago Title Waiver Format

What is the Chicago Title Waiver Format form?

The Chicago Title Waiver Format form is a legal document used in Illinois to waive any lien rights that a contractor or supplier may have on a property. By signing this form, the undersigned acknowledges receipt of payment and releases any claims against the property for labor, materials, or services provided. This is often required in real estate transactions to ensure that the property is free from any potential liens that could arise from unpaid work.

Who needs to use the Chicago Title Waiver Format form?

This form is typically used by contractors, subcontractors, or suppliers who have provided labor or materials for a construction project. If you are involved in a construction project in Illinois and have received payment, using this waiver can help clarify that you are relinquishing any rights to file a mechanics' lien against the property for the work performed.

What information is required to complete the form?

To fill out the Chicago Title Waiver Format form, you need to provide several key pieces of information. This includes the name of your company, the property address, the amount received as payment, and details about the work performed. Additionally, you must list any subcontractors or suppliers involved in the project, including their payment status. Accurate information ensures the validity of the waiver.

What does "waiving lien rights" mean?

Waiving lien rights means that the contractor or supplier agrees to give up their legal right to place a lien on the property for unpaid work or materials. This is a common practice in the construction industry, as it helps protect property owners from potential legal claims and ensures that contractors receive payment for their services. It is important to understand that once you waive these rights, you cannot later claim a lien for the same work.

Are there any exceptions to the waiver?

Yes, the waiver typically includes provisions for "extras," which are additional costs incurred beyond the original contract terms. These can include change orders or modifications to the work agreed upon. It’s crucial to clearly outline any extras in the waiver to ensure that all parties are aware of what is included in the payment and what rights are being waived.

Is notarization required for the form?

Yes, the Chicago Title Waiver Format form must be notarized to be considered valid. This means that the individual signing the form must do so in the presence of a notary public, who will then verify the identity of the signer and witness the signing of the document. Notarization adds an extra layer of authenticity and can help prevent disputes regarding the validity of the waiver.

What happens if the form is not used?

If the Chicago Title Waiver Format form is not used, contractors or suppliers may retain their right to file a mechanics' lien against the property for unpaid work. This could lead to legal complications for both the contractor and the property owner. Without a waiver, the property owner may face potential claims that could affect their ownership rights and the sale of the property in the future.

Common mistakes

Filling out the Chicago Title Waiver Format form can be a straightforward process, but several common mistakes can lead to significant issues. One frequent error occurs when individuals fail to provide complete and accurate information about the company name and address. This section is critical, as it identifies the party waiving the lien. Omitting details or providing incorrect information can result in the waiver being deemed invalid, which may jeopardize the rights of the party involved.

Another mistake often made is neglecting to specify the correct amount of consideration being waived. The form requires the party to state the dollar amount in exchange for the waiver. If this amount is not clearly articulated, it can create confusion and potentially lead to disputes over payment. It is essential to ensure that the amount reflects all considerations, including any extras, to avoid complications later on.

In addition, individuals frequently overlook the importance of detailing all parties involved in the project. The contractor's affidavit section necessitates the inclusion of names and addresses of all parties who have contributed labor or materials. Failing to list these parties can result in legal challenges, as it may appear that the contractor is attempting to conceal obligations. Transparency in this section is crucial for maintaining the integrity of the waiver.

Finally, individuals sometimes forget to have the form properly notarized. The notary public’s signature is not merely a formality; it serves as a verification of the identity of the signer and the authenticity of the document. Without this step, the waiver may not hold up in court, rendering the efforts to protect rights ineffective. Ensuring that all required signatures, including that of the notary, are present is vital for the document's validity.

Documents used along the form

The Chicago Title Waiver Format form is an important document in real estate transactions, particularly in construction and renovation projects. It serves to release any claims or liens that a contractor or subcontractor may have on a property for work completed. However, several other forms and documents are often used in conjunction with this waiver to ensure that all parties are protected and that the transaction proceeds smoothly. Below is a list of these related documents, each with a brief description.

  • Contractor’s Affidavit: This document verifies that the contractor has completed the work and outlines the total contract amount, payments received, and any outstanding balances. It serves to assure the property owner that all labor and materials have been accounted for and that no further claims will be made.
  • Notice of Intent to Lien: Before filing a lien, a contractor or supplier may send this notice to inform the property owner of their intent. This document serves as a warning that if payment is not received, a lien may be placed on the property.
  • Final Waiver of Lien: This is a conclusive document that releases any remaining lien rights after the final payment has been made. It provides the property owner with peace of mind that all obligations have been fulfilled.
  • Change Order: A change order is a written agreement that modifies the original contract. It outlines any changes in the scope of work, costs, or timelines and must be agreed upon by both parties to ensure clarity and avoid disputes.
  • Subcontractor Waiver: Similar to the Chicago Title Waiver, this document is used by subcontractors to waive their lien rights. It ensures that the general contractor is protected from any claims by subcontractors for unpaid work.
  • Payment Application: This document is submitted by contractors to request payment for work completed. It typically includes a breakdown of labor and materials used, as well as any outstanding balances, and is essential for tracking project finances.

Using these documents in conjunction with the Chicago Title Waiver Format form helps to create a clear and transparent process for all parties involved. It minimizes the risk of disputes and ensures that everyone understands their rights and obligations. Proper documentation is crucial for maintaining trust and accountability in real estate transactions.

Similar forms

The Chicago Title Waiver Format form shares similarities with several other legal documents commonly used in real estate and construction. Below is a list of these documents and how they relate to the waiver form.

  • Mechanics Lien Waiver: This document serves a similar purpose by releasing a contractor's right to file a lien against a property for unpaid work. Like the Chicago Title Waiver, it is a formal acknowledgment that payment has been received.
  • Partial Lien Waiver: This waiver is used when a contractor receives partial payment for work completed. It is similar in that it releases the right to lien for the amount paid, while the Chicago Title Waiver addresses the full amount due.
  • Final Lien Waiver: This document is executed upon final payment and releases all claims against the property. It mirrors the Chicago Title Waiver in its intent to confirm that all obligations have been satisfied.
  • Subcontractor Waiver: A subcontractor may use this document to waive their lien rights for payment received. It is akin to the Chicago Title Waiver, as both involve the relinquishment of lien rights in exchange for payment.
  • Affidavit of Payment: This document certifies that all subcontractors and suppliers have been paid. It parallels the Chicago Title Waiver by ensuring that there are no outstanding claims against the property.
  • Notice of Intent to Lien: This notice informs property owners of a contractor's intention to file a lien if payment is not made. While not a waiver, it serves a similar purpose by protecting the contractor's rights before a waiver is executed.
  • Change Order: This document outlines modifications to the original contract and includes adjustments to the payment amount. It relates to the Chicago Title Waiver as both documents can reference additional costs incurred during a project.
  • Release of Lien: This document formally releases a lien that has already been filed. It is similar to the Chicago Title Waiver in that it confirms the satisfaction of payment obligations and the removal of lien claims.
  • Construction Contract: This agreement outlines the terms of the project, including payment schedules. It is foundational to the Chicago Title Waiver, as the waiver is often executed in relation to the terms established in the contract.

Dos and Don'ts

When filling out the Chicago Title Waiver Format form, it is important to follow certain guidelines to ensure accuracy and compliance. Here are some do's and don'ts to keep in mind:

  • Do provide accurate company information, including the full name and address of the company involved in the transaction.
  • Do clearly state the amount of consideration being received, ensuring that it matches any relevant contractual agreements.
  • Don't leave any sections of the form blank; incomplete forms may lead to delays or legal issues.
  • Don't forget to have the form notarized after signing, as this step is crucial for its legal validity.

Misconceptions

Understanding the Chicago Title Waiver Format form is essential for those involved in real estate transactions. However, several misconceptions exist about this document. Here are seven common misunderstandings:

  • It is only for contractors. Many believe that only contractors need to use this form. In reality, anyone providing services or materials related to a property can utilize it to waive lien rights.
  • It eliminates all rights to payment. Some think that signing the waiver means giving up any claim to payment. While it waives lien rights, it does not eliminate the right to receive payment for work performed.
  • It must be notarized to be valid. There is a misconception that notarization is a requirement for the waiver to be effective. While notarization adds a layer of authenticity, the waiver can still be valid without it, depending on the circumstances.
  • All extras must be included in the waiver. Some individuals believe that all extras must be listed in detail. While it is advisable to include them, the waiver can still be effective even if not all extras are mentioned explicitly.
  • It is only applicable in Illinois. Although the form is designed for use under Illinois law, similar waivers exist in other states. Users should ensure they are using the correct form for their jurisdiction.
  • It protects the owner from all claims. There is a notion that this waiver protects property owners from any claims related to the project. However, it only addresses the specific claims of the party signing the waiver.
  • Once signed, it cannot be revoked. Many assume that a signed waiver is permanent and cannot be undone. In certain situations, it may be possible to revoke or modify the waiver, depending on the agreement between the parties involved.

By clarifying these misconceptions, individuals can better navigate the complexities of the Chicago Title Waiver Format form and make informed decisions in their real estate transactions.

Key takeaways

The Chicago Title Waiver Format form is a crucial document in the construction and real estate industries. Here are key takeaways regarding its completion and use:

  • Company Information: Clearly state the company name at the top of the form to identify the entity providing the waiver.
  • Property Details: Include the specific address of the property involved to avoid ambiguity.
  • Consideration Amount: Specify the dollar amount being acknowledged as consideration for the waiver, ensuring it reflects the correct value.
  • Waiver Scope: Understand that the waiver releases any claims to liens under Illinois law, covering all labor, materials, and services provided.
  • Extras Definition: Recognize that "extras" encompass all change orders, both oral and written, and must be accounted for in the total contract amount.
  • Affidavit Requirement: The contractor must provide an affidavit confirming the accuracy of the information and waivers stated in the document.
  • Payment Verification: Document all payments received prior to the current payment to maintain transparency in financial dealings.
  • List of Parties: Include names and addresses of all parties involved in the project to ensure comprehensive coverage of all contributors.
  • Notary Requirement: The form must be notarized to validate the signatures and affirm the authenticity of the document.

Utilizing the Chicago Title Waiver Format form correctly can help protect the rights of all parties involved in a construction project and facilitate smoother transactions.