Get California Re 203 Form

Get California Re 203 Form

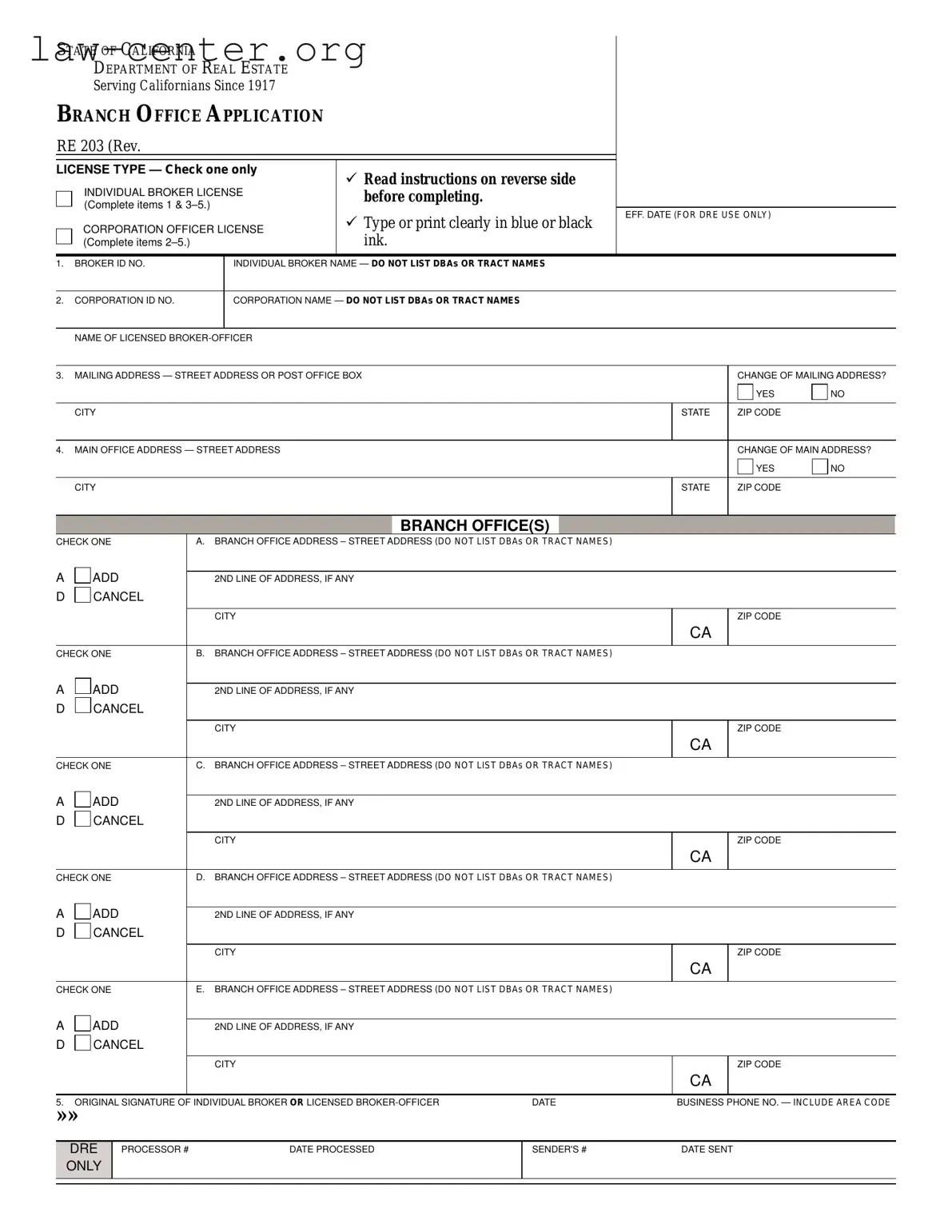
The California Re 203 form is an application used by individuals and corporations to request a branch office license from the California Department of Real Estate. This form is essential for brokers who wish to add or cancel branch office locations. To ensure a smooth application process, complete the form accurately and submit it as instructed.

Ready to fill out the form? Click the button below.

Structure

The California RE 203 form is an essential document for those looking to establish or manage branch offices within the state’s real estate sector. This form is primarily used by individual brokers and corporate officers to apply for or update branch office licenses. When filling out the RE 203, applicants must provide specific information, including their broker identification number, mailing address, and the addresses of the branch offices they wish to add or cancel. It's crucial to note that the form requires clear and accurate details, as any discrepancies can lead to processing delays. Additionally, the RE 203 includes sections that guide users on how to properly complete the application, whether they are renewing existing licenses or making changes to their business addresses. Understanding the nuances of this form can significantly streamline the application process and help ensure compliance with California's real estate regulations.

California Re 203 Preview

STATE OF CALIFORNIA

DEPARTMENT OF REAL ESTATE

Serving Californians Since 1917

BRANCH OFFICE APPLICATION

 

RE 203 (Rev.

 

 

 

LICENSE TYPE — Check one only

Read instructions on reverse side

 

INDIVIDUAL BROKER LICENSE

before completing.

(Complete items 1 & 3–5.)

 

CORPORATION OFFICER LICENSE

Type or print clearly in blue or black

ink.

(Complete items 2–5.)

 

 

EFF. DATE (FOR DRE USE ONLY)

1.

BROKER ID NO.

 

INDIVIDUAL BROKER NAME — DO NOT LIST DBAs OR TRACT NAMES

 

 

 

 

 

 

 

 

 

 

 

 

 

 

 

 

 

 

 

 

2.

CORPORATION ID NO.

 

CORPORATION NAME — DO NOT LIST DBAs OR TRACT NAMES

 

 

 

 

 

 

 

 

 

 

 

 

 

 

 

 

 

 

 

 

 

 

 

NAME OF LICENSED BROKER-OFFICER

 

 

 

 

 

 

 

 

 

 

 

 

 

 

 

 

 

 

 

 

 

3.

MAILING ADDRESS — STREET ADDRESS OR POST OFFICE BOX

 

 

 

CHANGE OF MAILING ADDRESS?

 

 

 

 

 

 

 

 

 

 

 

YES

 

NO

 

 

 

 

 

 

 

 

 

 

 

 

 

 

 

CITY

 

 

 

 

 

STATE

ZIP CODE

 

 

 

 

 

 

 

 

 

 

 

 

 

 

 

4.

MAIN OFFICE ADDRESS — STREET ADDRESS

 

 

 

CHANGE OF MAIN ADDRESS?

 

 

 

 

 

 

 

 

 

 

 

YES

 

NO

 

 

 

 

 

 

 

 

 

 

 

 

 

 

 

 

 

 

 

 

 

 

 

 

 

 

 

CITY

 

 

 

 

 

STATE

ZIP CODE

 

 

 

 

 

 

 

 

 

 

 

 

 

 

 

 

 

 

 

BRANCH OFFICE(S)

 

 

 

 

 

 

 

CHECK ONE

A. BRANCH OFFICE ADDRESS – STREET ADDRESS (DO NOT LIST DBAs OR TRACT NAMES)

 

 

 

 

 

 

A

 

ADD

 

 

 

 

 

 

 

 

 

 

 

 

 

 

 

 

 

 

 

 

 

 

2ND LINE OF ADDRESS, IF ANY

 

 

 

 

 

 

 

 

D

 

CANCEL

 

 

 

 

 

 

 

 

 

 

 

 

 

 

 

 

 

 

 

 

 

 

 

 

 

 

 

 

 

 

 

 

 

 

 

 

 

 

 

CITY

 

 

 

ZIP CODE

 

 

 

 

 

 

 

 

 

 

CA

 

 

 

 

 

 

 

 

 

 

 

 

 

 

 

 

CHECK ONE

B. BRANCH OFFICE ADDRESS – STREET ADDRESS (DO NOT LIST DBAs OR TRACT NAMES)

 

 

 

 

 

 

A

 

ADD

 

 

 

 

 

 

 

 

 

 

 

 

 

 

 

 

 

 

 

 

 

 

 

2ND LINE OF ADDRESS, IF ANY

 

 

 

 

 

 

 

 

 

 

 

 

 

 

 

 

 

D

 

CANCEL

 

 

 

 

 

 

 

 

 

 

 

 

 

 

 

 

 

 

 

 

 

 

 

 

 

 

 

 

 

 

 

 

 

 

 

 

 

 

 

CITY

 

 

 

ZIP CODE

 

 

 

 

 

 

 

 

 

 

CA

 

 

 

 

 

 

 

 

 

 

 

 

 

 

CHECK ONE

C. BRANCH OFFICE ADDRESS – STREET ADDRESS (DO NOT LIST DBAs OR TRACT NAMES)

 

 

 

 

 

 

A

 

ADD

 

 

 

 

 

 

 

 

 

 

 

2ND LINE OF ADDRESS, IF ANY

 

 

 

 

 

 

 

 

D

 

CANCEL

 

 

 

 

 

 

 

 

 

 

 

 

 

 

 

 

 

 

 

 

 

 

 

 

 

 

 

CITY

 

 

 

ZIP CODE

 

 

 

 

 

 

 

 

 

 

CA

 

 

 

 

 

 

 

 

 

 

 

 

 

 

CHECK ONE

D. BRANCH OFFICE ADDRESS – STREET ADDRESS (DO NOT LIST DBAs OR TRACT NAMES)

 

 

 

 

 

 

A

 

ADD

 

 

 

 

 

 

 

 

 

 

 

 

 

 

 

 

 

 

 

 

 

 

2ND LINE OF ADDRESS, IF ANY

 

 

 

 

 

 

 

 

D

 

CANCEL

 

 

 

 

 

 

 

 

 

 

 

 

 

 

 

 

 

 

 

 

 

 

 

 

 

 

 

 

 

 

 

 

 

 

 

 

 

 

 

CITY

 

 

 

ZIP CODE

 

 

 

 

 

 

 

 

 

 

CA

 

 

 

 

 

 

 

 

 

 

 

 

 

 

CHECK ONE

E. BRANCH OFFICE ADDRESS – STREET ADDRESS (DO NOT LIST DBAs OR TRACT NAMES)

 

 

 

 

 

 

A

 

ADD

 

 

 

 

 

 

 

 

 

 

 

 

 

 

 

 

 

 

 

 

 

 

2ND LINE OF ADDRESS, IF ANY

 

 

 

 

 

 

 

 

D

 

CANCEL

 

 

 

 

 

 

 

 

 

 

 

 

 

 

 

 

 

 

 

 

 

 

 

 

 

 

 

 

 

 

 

 

 

 

 

 

 

 

 

 

CITY

 

 

 

ZIP CODE

 

 

 

 

 

 

 

 

 

 

CA

 

 

 

 

 

 

 

 

 

 

 

 

 

 

 

 

 

5.

ORIGINAL SIGNATURE OF INDIVIDUAL BROKER OR LICENSED BROKER-OFFICER

DATE

BUSINESS PHONE NO. — INCLUDE AREA CODE

»»

DRE ONLY

PROCESSOR #

DATE PROCESSED

SENDER'S #

DATE SENT

RE 203 — Reverse

General

Individual Brokers — Complete items #1 and 3–4 plus the appropriate number of branch ofice address blocks.

Corporations — Complete items #2–4 plus the appropriate number of branch ofice address blocks.

Signature — Line #5 must be signed by the broker or licensed broker-oficer of the corporation.

If you electronically re-create this form to facilitate completion on a computer, the form should not be altered in any manner. To do so, could result in disciplinary action. Also, please make certain you do not delete any preprinted information and are using the latest version of the form.

A branch ofice license cannot be issued to a P.O. Box.

Add or Cancel License

If you hold an individual broker license and a corporation oficer

license, indicate which license the add/cancel request should apply. If add/cancel requests are needed for both licenses, complete a separate RE 203 for each license.

Branch ofice addresses cannot be changed. The old address must be canceled and the new one added.

Check the add or cancel box for each address entered. If a street address is unavailable, indicate the physical location (i.e., the nearest intersection and the distance to it).

Branch Ofices and DBAs

Branch ofice licenses and ictitious business names are not associated with each other except through the broker or corporation oficer license. Once added to an individual broker license or corporation oficer license, a ictitious business name may be used at any or

all locations that are currently licensed to this individual broker or corporation.

eLicensing

Use eLicensing for expedited processing of your application.

It's easy, paperless and interactive. Renewal information is posted immediately on DRE's public information.

Licensees can perform the following transactions using the eLicensing system at www.dre.ca.gov:

Broker and salesperson renewals

License certiicate requests (broker, salesperson, oficer and branch)

Salesperson additions/changes of employing broker

Broker discontinuation of salesperson employment

Mailing address changes

Broker main ofice address addition/changes

Automated fee payment and processing

Renewal Information

On-Time — Branch ofice licenses are automatically renewed when the license of the broker or designated oficer of a corporation

is renewed on an on-time basis. Complete this form to cancel any branch ofices no longer in effect.

Late — Branch ofice licenses are automatically canceled when the license of a broker or designated broker-oficer of a corporation

is renewed on a late basis. Complete this form to re-add branch ofices.

Mailing or Questions

Mail completed application to: Department of Real Estate, P.O. Box 187004, Sacramento, CA 95818-7004

Forms and additional information may also be obtained from our Web site at www.dre.ca.gov.

Note

To avoid processing delays, please complete all information requested.

The following situations routinely cause delays or require the Branch Ofice Application to be returned:

The branch ofice address being requested:

Is the same as the current main ofice address on record with DRE;*

Is incomplete (zip codes are required for all branch ofice licenses);

Is not a California address;

Does not indicate a street address or physical location (i.e., the nearest intersection and distance to it)

The mailing and/or main ofice addresses listed on this application differ from those currently on record with DRE.*

The license identiication number does not correspond to the licensee name.*

The application:

Is not properly signed by the licensed broker or broker- oficer (when request is made by a corporation);

Contains an unacceptable signature (countersignature, photocopy, or fax copy); or

Is not suitable for microilming/imaging and/or processing (poor quality fax or photocopy).

*The current main, mailing, branch addresses, etc., may be veriied on the Internet by selecting “License Status” from the DRE home page. Our Web address is www.dre.ca.gov.

PRIVACY INFORMATION:

Section 1798.17 of the Civil Code requires this notice be provided when collecting personal or conidential information from individuals. Each

individual has the right to review personal information maintained by this

Agency, unless access is exempted by law.

Department of Real Estate

Managing Deputy Comm. IV

2201 Broadway

Licensing, Examinations, & Education

Sacramento, CA 95818

Telephone: 877-373-4542

General powers of the Commissioner, Sections 10050, 10071, and 10075 of the Business and Professions Code authorizes the maintenance of this

information.

Business and Professions Code Sections 30, 31(e) and 494.5(d) require

each real estate licensee to initially provide to the Department of Real Estate his or her social security number which will be furnished to the

Franchise Tax Board. The Franchise Tax Board will use your number

to establish identiication exclusively for tax purposes. These code

sections also require that each application for a new license or renewal provides notiication on the application, that the Board of Equalization and the Franchise Tax Board will share taxpayer information with the Department of Real Estate, and that failure to pay tax obligations may result in a suspension or denial of a license. The Board of Equalization and Franchise Tax Board require the Department to collect social security numbers and federal taxpayer identiication numbers for the purposes of matching the names of the 500 largest tax delinquencies pursuant to Section 7063 or 19195 of the Revenue and Taxation Code. Your social security numbers and federal taxpayer identiication

number shall not be deemed public records and shall not be open to the public for inspection.

The Real Estate Law and the Regulations of the Commissioner require applicants to provide the Department with speciic information. If all

or any part of the required information is not provided, processing may be delayed. In addition, the Commissioner may suspend or revoke a license, or in the case of a license applicant, may deny the issuance for misstatements of facts (including a failure to disclose a material fact) in an application for a license.

The information requested in this form is primarily used to furnish license status information to the Department’s Enforcement Section, and

to answer inquiries and give information to the public on license status, mailing and business addresses and actions taken to deny, revoke, restrict or suspend licenses for cause.

This information may be transferred to real estate licensing agencies in other states, law enforcement agencies (City Police, Sheriff’s Departments, District Attorneys, Attorney General, F.B.I.), and any other

regulatory agencies (i.e., Department of Corporations, Department of

Insurance, Department of Consumer Affairs, California Bar Association).

Document Data

Fact Name Details
Form Purpose The RE 203 form is used to apply for a branch office license in California for individual brokers and corporation officers.
Governing Law This form is governed by the California Business and Professions Code, specifically Sections 10050, 10071, and 10075.
Signature Requirement The form must be signed by the individual broker or the licensed broker-officer of the corporation, ensuring accountability.
Mailing Address Applicants must provide a complete mailing address, including city, state, and zip code. P.O. Boxes are not acceptable for branch office licenses.
Branch Office Addresses Each branch office address must be a physical location. If an address changes, the old one must be canceled before a new one can be added.
eLicensing System The California Department of Real Estate offers an eLicensing system for expedited processing of applications, making it paperless and interactive.
Renewal Process Branch office licenses renew automatically when the broker's or designated officer's license is renewed on time. Late renewals lead to automatic cancellations.
Privacy Information Section 1798.17 of the Civil Code requires that individuals be informed about their rights regarding personal information collected by the Department of Real Estate.

How to Use California Re 203

Completing the California RE 203 form is a necessary step for individuals and corporations seeking to apply for or update branch office licenses. It is important to ensure that all information is accurate and complete to avoid processing delays. Following the steps outlined below will guide you through the process of filling out the form correctly.

  1. Determine your license type. Choose either Individual Broker License or Corporation Officer License by checking the appropriate box at the top of the form.
  2. If you are applying as an individual broker, complete items 1 and 3-5. If you are applying as a corporation, complete items 2-5.
  3. In item 1, provide your Broker ID Number and your full name. Do not include any DBAs or tract names.
  4. If you are a corporation, in item 2, enter your Corporation ID Number and the full name of your corporation. Again, avoid listing DBAs or tract names.
  5. For item 3, fill in your mailing address, including street address or P.O. Box, city, state, and ZIP code. Indicate if this is a change of mailing address by checking the appropriate box.
  6. In item 4, provide the main office address, including street address, city, state, and ZIP code. Again, indicate if this is a change of main office address.
  7. Complete the branch office address sections (item 4) as needed. You may add multiple branch office addresses by filling out the corresponding sections. Ensure to indicate if you are adding or canceling an address by checking the appropriate box.
  8. In item 5, sign the form. The signature must be that of the individual broker or licensed broker-officer of the corporation. Include the date of signing and your business phone number.
  9. Review the completed form for accuracy. Ensure all required fields are filled out and that your signature is present.
  10. Mail the completed application to the Department of Real Estate at the address provided: Department of Real Estate, P.O. Box 187004, Sacramento, CA 95818-7004.

Key Facts about California Re 203

What is the purpose of the California RE 203 form?

The California RE 203 form is used to apply for a branch office license or to make changes to existing branch office licenses for individual brokers or corporation officers. It serves as a formal request to the Department of Real Estate (DRE) to add or cancel branch office addresses associated with a real estate license. Completing this form accurately is crucial to ensure compliance and avoid delays in processing.

Who needs to fill out the RE 203 form?

Both individual brokers and corporation officers must complete the RE 203 form if they wish to establish or modify branch office locations. Individual brokers should fill out items 1 and 3-5, while corporation officers need to complete items 2-5. It is important to select the correct license type to ensure the application is processed correctly.

What information is required on the RE 203 form?

The form requires specific information such as the broker ID number, corporation ID number, mailing address, and main office address. Additionally, applicants must provide the street addresses of any branch offices they wish to add or cancel. Each address must be complete, including city and zip code. If a branch office address is being changed, the old address must be canceled before a new one can be added.

How can I avoid processing delays with the RE 203 form?

To avoid delays, ensure that all information is complete and accurate. Common issues include providing the same address for a branch office and main office, incomplete addresses, or failing to sign the form correctly. Double-check that the license identification number matches the licensee name. Submitting the form electronically through the eLicensing system can also expedite the process.

Where do I send the completed RE 203 form?

Completed applications should be mailed to the Department of Real Estate at P.O. Box 187004, Sacramento, CA 95818-7004. For additional information or forms, visit the DRE's website at www.dre.ca.gov. It is advisable to ensure that the form is sent to the correct address to prevent any unnecessary delays in processing.

Common mistakes

Filling out the California RE 203 form can be a straightforward process, but many applicants make common mistakes that can lead to delays or complications. Understanding these pitfalls can help ensure a smooth application experience.

One frequent error is failing to provide complete addresses. Applicants often neglect to include essential details such as zip codes or street addresses. A branch office license cannot be issued to a P.O. Box, and if the street address is unavailable, it is important to indicate the nearest intersection and the distance to it. Omitting these details can result in the application being returned.

Another mistake is not checking the correct boxes for adding or canceling branch office addresses. Each branch office address must have the appropriate add or cancel box checked. If this step is overlooked, it can create confusion and lead to processing delays.

Additionally, many applicants forget to sign the form properly. The signature on line #5 must be that of the licensed broker or broker-officer. If a corporation is involved, the signature must come from an authorized officer. Submitting a form without the correct signature can result in rejection.

Inconsistencies in the information provided can also cause issues. If the mailing or main office addresses differ from those on record with the Department of Real Estate (DRE), the application may be delayed. It's crucial to ensure that all information matches what is currently recorded.

Some applicants also mistakenly use outdated versions of the form. The RE 203 form should be the latest version, and any alterations to the original format can lead to disciplinary action. It's advisable to check the DRE website for the most recent updates before completing the form.

Moreover, applicants sometimes submit forms that are not suitable for processing. Poor-quality faxes or photocopies can hinder the ability to read the information clearly. Ensuring that the form is legible and well-presented is essential for efficient processing.

Lastly, failing to provide the correct license identification number can create significant complications. The number must correspond with the name of the licensee. If there is a mismatch, the application will likely be delayed or returned.

By being mindful of these common mistakes, applicants can navigate the California RE 203 form with greater ease and confidence, ensuring a smoother path to obtaining their branch office license.

Documents used along the form

The California RE 203 form is essential for applying for a branch office license in real estate. However, several other documents often accompany this form to ensure a complete application. Below is a list of these documents along with a brief description of each.

  • California RE 204 Form: This form is used to apply for a new broker license. It collects information about the applicant's qualifications and business structure.
  • California RE 205 Form: This form allows for the renewal of an existing broker license. It requires updated personal and business information to maintain active status.
  • California RE 206 Form: This form is for requesting a change of address for a broker's main office. Accurate address information is crucial for compliance and communication.
  • California RE 207 Form: This document is used to add or remove fictitious business names associated with a broker's license. It ensures that all business names are properly registered.
  • California RE 208 Form: This form is for reporting changes in corporate officers. It is necessary for corporations to keep their licensing information up to date.
  • California RE 209 Form: This form is used for the transfer of a broker's license from one entity to another. It facilitates smooth transitions in ownership or business structure.
  • Verification of License Status: This document is often requested to confirm the current status of a broker's license. It helps ensure compliance with state regulations.
  • Proof of Insurance: Many applications require proof of liability insurance. This document protects clients and the broker from potential claims.

Completing the California RE 203 form along with these accompanying documents can streamline the application process. Ensuring that all required forms are submitted accurately will help avoid delays and complications in obtaining the necessary licenses.

Similar forms

The California RE 203 form is an important document for those applying for a branch office license in the real estate industry. It shares similarities with several other forms used in the realm of real estate licensing and business operations. Here are four documents that are similar to the RE 203 form, along with explanations of their similarities:

  • California RE 201 Form: This form is used for applying for an individual broker license. Like the RE 203, it requires detailed information about the applicant, including personal and business addresses. Both forms serve the purpose of ensuring that the Department of Real Estate has accurate and up-to-date information about licensed brokers and their business operations.
  • California RE 204 Form: This document is for the application of a corporate broker license. Similar to the RE 203, it involves the completion of multiple sections that gather essential information about the corporation and its designated officers. Both forms are structured to maintain the integrity of the licensing process in California's real estate sector.
  • California RE 205 Form: This form is utilized for the application of a branch office license for a corporation. Just like the RE 203, it requires the applicant to provide branch office addresses and indicate whether they are adding or canceling an office. Both forms ensure that all branch offices are properly registered and compliant with state regulations.
  • California RE 206 Form: This form is used to report changes to a real estate licensee's personal information, such as address changes. The RE 203 also includes sections for updating mailing and main office addresses. Both documents aim to keep the Department of Real Estate informed about any changes that could affect a broker's licensing status.

Understanding these documents can help streamline the application process and ensure compliance with California's real estate regulations. Each form plays a vital role in maintaining accurate records and protecting the interests of consumers and professionals alike.

Dos and Don'ts

When filling out the California RE 203 form, it's important to be thorough and accurate. Here are some key dos and don'ts to keep in mind:

  • Do type or print clearly in blue or black ink to ensure legibility.
  • Do complete all required items accurately, including the broker or corporation name without listing DBAs or tract names.
  • Don't use a P.O. Box for branch office addresses, as these cannot be issued to a P.O. Box.
  • Don't forget to sign the form. The signature must be from the individual broker or licensed broker-officer of the corporation.

By following these guidelines, you can help ensure that your application is processed smoothly and without unnecessary delays.

Misconceptions

Misconceptions about the California Re 203 form can lead to confusion and delays in processing applications. Here are nine common misunderstandings:

  • Only Individual Brokers Can Use the Form: Both individual brokers and corporations can complete the RE 203 form. Each must provide the appropriate information based on their license type.
  • DBAs Can Be Listed: The form specifically states that fictitious business names (DBAs) should not be included. Only the official names of brokers or corporations are acceptable.
  • P.O. Boxes Are Acceptable for Branch Offices: A branch office license cannot be issued to a P.O. Box. A physical street address is required.
  • Changes to Branch Office Addresses Are Simple: You cannot simply change a branch office address. The old address must be canceled before a new one can be added.
  • Online Submission Is Allowed: The form cannot be altered in any manner if it is electronically recreated. This includes not deleting any preprinted information.
  • Signature Requirements Are Flexible: The form must be signed by the licensed broker or broker-officer. Unacceptable signatures, such as photocopies, will delay processing.
  • Renewals Are Automatic for All Branch Offices: Only branch office licenses are automatically renewed when the broker's license is renewed on time. Cancellations must be submitted separately.
  • Address Information Can Differ: The mailing and main office addresses must match those currently on record with the Department of Real Estate. Discrepancies will lead to delays.
  • All Information Is Public: While some information is public, personal identifiers like Social Security numbers are not open to public inspection and are kept confidential.

Key takeaways

When filling out the California RE 203 form, keep the following key takeaways in mind:

  • Complete Required Sections: Individual brokers must fill out items 1 and 3-5, while corporations need to complete items 2-5.
  • Signature Requirement: The form must be signed by the individual broker or the licensed broker-officer of the corporation in line 5.
  • Address Details: Ensure that all mailing and main office addresses are accurate and complete, including zip codes.
  • Branch Office Addresses: A branch office license cannot be issued to a P.O. Box. Old addresses must be canceled before adding new ones.
  • Electronic Submission: If recreating the form electronically, do not alter any preprinted information to avoid disciplinary action.
  • eLicensing Benefits: Use the eLicensing system for faster processing of applications and renewals.
  • Common Errors: Avoid processing delays by ensuring that the application is properly signed and that the addresses do not match existing records.
  • Privacy Compliance: Be aware that personal information collected is protected and not available for public inspection.