Get California Earthquake Authority Form

Get California Earthquake Authority Form

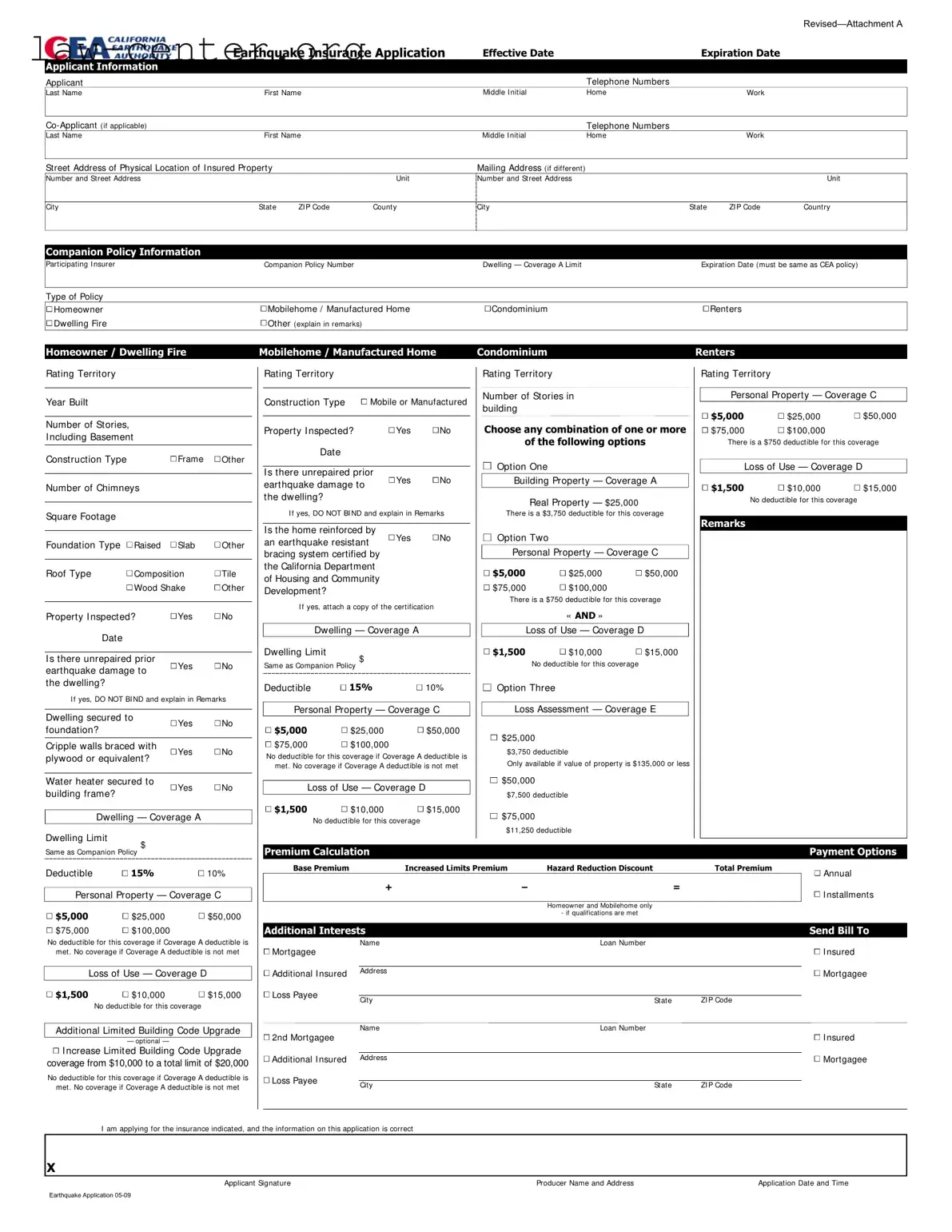
The California Earthquake Authority form is an essential application for individuals seeking earthquake insurance in California. This form gathers vital information about the applicant, their property, and existing insurance policies to ensure adequate coverage against potential earthquake damage. If you’re ready to protect your home and belongings, fill out the form by clicking the button below.

Structure

The California Earthquake Authority (CEA) form serves as a crucial tool for homeowners seeking earthquake insurance in California. This application collects essential information about the applicant and the property to ensure that coverage is tailored to specific needs. Applicants will provide their personal details, including names and contact numbers, as well as the physical and mailing addresses of the insured property. The form also requires information about any companion insurance policies, such as the participating insurer's name and policy number, which must align with the CEA policy's expiration date. Coverage options are detailed, allowing applicants to select limits for dwelling coverage, personal property, and loss of use. Additionally, the form addresses vital safety features of the property, such as whether it has been inspected for earthquake damage or if it is secured to its foundation. Applicants can also choose payment options and specify who should receive the insurance bill. Finally, the form concludes with a section for remarks and requires the applicant's signature, ensuring that all provided information is accurate and complete.

California Earthquake Authority Preview

Revised—Attachment A

 

Earthquake Insurance Application

Effective Date

 

Expiration Date

 

Applicant Information

 

 

 

 

 

 

 

 

Applicant

 

 

 

 

Telephone Numbers

 

 

 

Last Name

First Name

 

Middle I nitial

Home

 

Work

 

Co-Applicant (if applicable)

 

 

 

 

Telephone Numbers

 

 

 

Last Name

First Name

 

Middle I nitial

Home

 

Work

 

Street Address of Physical Location of I nsured Property

 

 

Mailing Address (if different)

 

 

 

 

Number and Street Address

 

 

Unit

Number and Street Address

 

 

 

Unit

City

State

ZI P Code

County

City

 

State

ZI P Code

Country

 

 

 

 

 

 

 

 

 

Companion Policy Information

 

 

 

 

 

 

 

 

Participating I nsurer

Companion Policy Number

 

Dwelling — Coverage A Limit

 

Expiration Date (must be same as CEA policy)

Type of Policy

 

 

 

 

 

 

 

 

Homeowner

Mobilehome / Manufactured Home

Condominium

 

 

Renters

 

Dwelling Fire

Other (explain in remarks)

 

 

 

 

 

 

Homeowner / Dwelling Fire

Mobilehome / Manufactured Home

CondominiumRenters

Rating Territory

Year Built

Number of Stories,

I ncluding Basement

Construction Type

 

Frame

Other

 

 

 

Number of Chimneys

 

 

 

 

 

 

Square Footage

 

 

 

 

 

 

 

Foundation Type

Raised

Slab

Other

 

 

 

Roof Type

Composition

Tile

 

Wood Shake

Other

 

 

 

Property I nspected?

Yes

No

Date

 

 

 

 

 

 

I s there unrepaired prior

Yes

No

earthquake damage to

 

 

the dwelling?

 

 

 

I f yes, DO NOT BI ND and explain in Remarks

 

 

 

 

Dwelling secured to

 

Yes

No

foundation?

 

 

 

 

 

 

 

Cripple walls braced with

Yes

No

plywood or equivalent?

 

 

 

 

 

Water heater secured to

Yes

No

building frame?

 

 

 

 

Dwelling — Coverage A

 

Dwelling Limit

$

 

 

 

 

 

Rating Territory

Construction Type

Mobile or Manufactured

 

 

 

Property I nspected?

Yes

No

Date

 

 

 

 

 

 

I s there unrepaired prior

Yes

No

earthquake damage to

 

 

the dwelling?

 

 

 

I f yes, DO NOT BI ND and explain in Remarks

 

 

 

Is the home reinforced by

Yes

No

an earthquake resistant

 

 

bracing system certified by

 

 

the California Department

 

 

of Housing and Community

 

 

Development?

 

 

 

I f yes, attach a copy of the certification

Dwelling — Coverage A

 

Dwelling Limit

$

 

 

 

 

 

Same as Companion Policy

 

 

Deductible

15%

 

10%

Personal Property — Coverage C

$5,000

$25,000

 

$50,000

$75,000

$100,000

 

 

No deductible for this coverage if Coverage A deductible is met. No coverage if Coverage A deductible is not met

Loss of Use — Coverage D

$1,500

$10,000

$15,000

 

No deductible for this coverage

 

Rating Territory

Number of Stories in building

Choose any combination of one or more

of the following options

Option One

Building Property — Coverage A

Real Property — $25,000

There is a $3,750 deductible for this coverage

Option Two

Personal Property — Coverage C

$5,000

$25,000

$50,000

$75,000

$100,000

 

There is a $750 deductible for this coverage

«AND »

Loss of Use — Coverage D

$1,500

$10,000

$15,000

No deductible for this coverage

Option Three

Loss Assessment — Coverage E

$25,000

$3,750 deductible

Only available if value of property is $135,000 or less

$50,000

$7,500 deductible

$75,000

$11,250 deductible

Rating Territory

Personal Property — Coverage C

$5,000

$25,000

$50,000

$75,000

$100,000

 

There is a $750 deductible for this coverage

Loss of Use — Coverage D

$1,500

$10,000

$15,000

 

No deductible for this coverage

 

Remarks

Same as Companion Policy

 

Deductible

15%

10%

Personal Property — Coverage C

$5,000

$25,000

$50,000

$75,000

$100,000

 

No deductible for this coverage if Coverage A deductible is met. No coverage if Coverage A deductible is not met

Loss of Use — Coverage D

$1,500

$10,000

$15,000

No deductible for this coverage

Additional Limited Building Code Upgrade

— optional —

I ncrease Limited Building Code Upgrade coverage from $10,000 to a total limit of $20,000

No deductible for this coverage if Coverage A deductible is met. No coverage if Coverage A deductible is not met

Premium Calculation

 

 

 

Payment Options

Base Premium

Increased Limits Premium

Hazard Reduction Discount

Total Premium

Annual

 

 

 

 

+

 

=

I nstallments

 

 

 

 

 

 

Homeowner and Mobilehome only

 

 

 

 

- if qualifications are met

 

 

Additional Interests

 

 

Send Bill To

 

Name

Loan Number

 

 

Mortgagee

 

 

 

I nsured

 

 

 

 

 

Additional I nsured

Address

 

 

Mortgagee

 

 

 

Loss Payee

 

 

 

 

City

State

ZI P Code

 

 

Name

Loan Number

 

 

2nd Mortgagee

 

 

 

I nsured

 

 

 

 

 

Additional I nsured Address

 

 

Mortgagee

Loss Payee

 

 

 

 

City

State

ZI P Code

 

I am applying for the insurance indicated, and the information on this application is correct

X

Applicant Signature

Producer Name and Address

Application Date and Time

Earthquake Application 05-09

Attachment A – Page 2

CALIFORNIA EARTHQUAKE AUTHORITY

EARTHQUAKE INSURANCE APPLICATION – 05/09 Edition

INSTRUCTIONS

POLICY EFFECTIVE DATE AND EXPIRATION DATE

Provide CEA policy effective date and expiration date. Expiration date MUST be the same as the expiration date of the companion policy.

APPLICANT

Complete all requested information for applicant(s) including: Name(s)

Telephone number(s)

Street address of physical location of insured property

Mailing address (if different from street address of property’s physical location)

COMPANION POLICY INFORMATION

Complete all requested information for companion policy including: Name of Participating Insurer

Policy number of companion policy

Dwelling limit (i.e., Coverage A) of companion policy (if companion policy has dwelling limit) Expiration date of companion policy

Type of companion policy

POLICY TYPE –RATING AND COVERAGE INFORMATION Identify CEA policy type based on the type of companion policy as follows:

Homeowner (Companion policy must be either a Homeowners (HO-1, 2, 3, 5, or 8), Dwelling Fire (building), Landlord (building), or Mobilehome policy.)

O MOBILEHOME/MANUFACTURED HOME (Written on CEA Homeowner Policy form; however, requires unique rating information.)

Condominium (i.e. Common Interest Development) (Companion policy must be a Condominium Unit Owners (HO-6) policy.)

Renters (Companion policy must be a Renters (HO-4) , Mobilehome (tenant policy), Dwelling Fire (contents only), or Landlord (contents only) policy.)

Complete all information requested under the applicable CEA policy type. Answer all questions and select desired CEA policy limits and coverage options.

PREMIUM CALCULATION

Provide premium calculations.

PAYMENT OPTIONS

Select payment option:

Annual; or

Installments

SEND BILL TO

Select who should receive the bill:

Insured; or

Mortgagee

ADDITIONAL INTERESTS

Complete information requested for each additional interest, including:

Type:

OMortgagee;

OAdditional insured; or

OLoss payee

Name and address

Loan number (if applicable)

REMARKS

Include any additional remarks as needed.

SIGNATURE

Secure the applicant’s signature on the application.

Provide the producer’s name and address.

Provide the date and time the application is completed.

Document Data

Fact Name Description
Effective and Expiration Dates The application requires both an effective date and an expiration date. The expiration date must match the expiration date of the companion policy.
Applicant Information Applicants must provide their full name, telephone numbers, and the physical address of the insured property. This information is essential for processing the application.
Companion Policy Details Applicants must include information about the companion policy, such as the participating insurer's name, policy number, and dwelling coverage limit. This helps in determining the appropriate coverage.
California Governing Laws The California Earthquake Authority operates under California Insurance Code § 10089. This law governs earthquake insurance policies and the authority's functions.

How to Use California Earthquake Authority

Filling out the California Earthquake Authority form is an important step in securing your earthquake insurance. After completing the form, it will be submitted for processing. Make sure all information is accurate to avoid delays.

  1. Policy Effective Date and Expiration Date: Enter the effective date and expiration date of your CEA policy. Ensure the expiration date matches the companion policy's expiration date.
  2. Applicant Information: Fill in all required details for the applicant, including last name, first name, middle initial, and telephone numbers (home and work). Provide the street address of the insured property and the mailing address if different.
  3. Co-Applicant Information: If applicable, complete the same details for the co-applicant, including their last name, first name, middle initial, and telephone numbers.
  4. Companion Policy Information: Input details about the companion policy, including the participating insurer's name, policy number, dwelling limit, and expiration date. Specify the type of companion policy.
  5. Policy Type and Coverage Information: Identify the type of CEA policy based on the companion policy. Answer all questions and select the desired coverage limits and options.
  6. Premium Calculation: Calculate the base premium, increased limits premium, hazard reduction discount, and total premium.
  7. Payment Options: Choose your payment option: either annual or installments.
  8. Send Bill To: Indicate who should receive the bill, either the insured or the mortgagee.
  9. Additional Interests: Provide information for any additional interests, including type (mortgagee, additional insured, or loss payee), name, address, and loan number if applicable.
  10. Remarks: Include any additional remarks that may be necessary.
  11. Signature: Ensure the applicant signs the application. Include the producer's name and address, along with the date and time the application is completed.

Key Facts about California Earthquake Authority

What is the purpose of the California Earthquake Authority form?

The California Earthquake Authority (CEA) form is used to apply for earthquake insurance. This insurance helps protect homeowners, renters, and property owners in California from financial losses due to earthquake damage. Completing this form accurately is crucial to ensure coverage for your property.

Who needs to fill out this form?

Any individual or entity seeking earthquake insurance in California must complete this form. This includes homeowners, renters, and owners of mobile homes or condominiums. If there is a co-applicant, they must also provide their information on the form.

What information is required on the form?

The form requires personal information such as the applicant's name, contact numbers, and the address of the property to be insured. Additionally, details about any companion insurance policies, property characteristics, coverage limits, and deductibles must be provided. Accurate information ensures that the application is processed smoothly.

What types of properties can be insured?

The form accommodates various property types, including single-family homes, mobile homes, condominiums, and rental properties. Each type has specific requirements and coverage options that must be selected based on the property’s characteristics and existing insurance policies.

What are the coverage options available?

Coverage options include dwelling coverage, personal property coverage, and loss of use coverage. Applicants can choose different limits for each type of coverage based on their needs. Optional upgrades, such as increased building code upgrade coverage, may also be available.

How is the premium calculated?

The premium is calculated based on several factors, including the property type, coverage limits selected, and any discounts for hazard reduction measures. The form includes a section for calculating the total premium, which can be paid annually or in installments.

What should I do if there is prior earthquake damage?

If there is unrepaired earthquake damage to the dwelling, the applicant must indicate this on the form. It is important to note that if there is prior damage, the application cannot be bound until the issue is resolved, and further explanation should be provided in the remarks section.

What is the significance of the applicant's signature?

The applicant's signature on the form confirms that the information provided is accurate and that the applicant is applying for the indicated insurance. This signature is essential for processing the application and may also be required for any future claims.

Common mistakes

Filling out the California Earthquake Authority (CEA) form can be a daunting task, especially when the stakes are high. One common mistake people make is failing to provide accurate contact information. It’s essential to list both the applicant's and co-applicant's telephone numbers correctly. If the insurance company cannot reach you, it may delay the processing of your application or even lead to a denial of coverage. Double-checking this information can save you from unnecessary headaches later.

Another frequent error involves the companion policy information. Applicants often overlook the requirement to match the expiration date of the CEA policy with that of the companion policy. This mismatch can lead to complications during the claims process. If the dates do not align, the insurance coverage may be deemed invalid. Therefore, it is crucial to confirm that all dates are consistent before submitting the form.

Additionally, many applicants neglect to answer all questions regarding the property. For instance, the form asks whether the property has been inspected and if there is any unrepaired earthquake damage. Omitting these details can result in a denial of coverage. Insurers rely on this information to assess risk accurately, and failing to disclose it could jeopardize your policy. Always provide complete and honest answers to ensure that your application is processed smoothly.

Finally, applicants sometimes forget to sign the form. The signature serves as a confirmation that the information provided is correct and that the applicant understands the terms of the insurance policy. Without a signature, the application is incomplete and cannot be processed. To avoid this oversight, make it a habit to review the entire form before submission, ensuring that all required fields, including the signature, are filled out.

Documents used along the form

The California Earthquake Authority (CEA) form is an important document for individuals seeking earthquake insurance. Along with this form, several other documents and forms are commonly used to ensure comprehensive coverage and compliance with insurance requirements. Below is a list of these documents, each described briefly to provide clarity on their purpose.

  • Homeowners Insurance Policy: This document outlines the coverage details for a homeowner’s property, including protection against various risks, such as fire and theft. It often serves as a companion policy to the CEA form.
  • Dwelling Fire Insurance Policy: This policy provides coverage for residential properties that are not occupied by the owner. It typically covers the structure itself and may include personal property coverage.
  • Personal Property Inventory: A detailed list of personal belongings within the insured property. This inventory helps determine the value of items covered under the insurance policy.
  • Proof of Prior Insurance: This document serves as evidence of previous insurance coverage. It may be required to establish eligibility for certain benefits or discounts.
  • Earthquake Retrofit Certificate: A certification that verifies the property has undergone seismic retrofitting. This document may be necessary to qualify for specific earthquake insurance policies.
  • Loss Payee Agreement: This agreement designates a third party, such as a mortgage lender, to receive insurance proceeds in the event of a claim. It ensures that any outstanding mortgage is paid off first.
  • Additional Insured Endorsement: This document adds another party to the insurance policy, granting them coverage under the terms of the policy. It is often used to protect lenders or other stakeholders.

Understanding these documents can help individuals navigate the insurance process more effectively. Each plays a vital role in ensuring adequate coverage and protection against potential losses due to earthquakes and other risks.

Similar forms

  • Homeowners Insurance Application: Similar to the California Earthquake Authority form, this document collects personal information, property details, and insurance coverage options. It serves to assess risk and determine premium rates based on the applicant's home and belongings.

  • Flood Insurance Application: Like the earthquake application, this form gathers essential applicant information and property specifics. It focuses on flood risk assessment and coverage limits, ensuring that homeowners are protected against water damage.

  • Auto Insurance Application: This document requests details about the applicant, vehicle information, and coverage preferences. It assesses risk factors such as driving history and vehicle type, similar to how the earthquake form evaluates property risk.

  • Renters Insurance Application: This form is akin to the earthquake application in that it collects information about the applicant and their personal property. It focuses on protecting renters' belongings against various risks, including theft and damage.

  • Condominium Insurance Application: Similar to the California Earthquake Authority form, this application gathers details specific to condo ownership, including shared property coverage. It assesses unique risks associated with condominium living.

  • Mobile Home Insurance Application: This document parallels the earthquake form by collecting information specific to mobile home ownership. It evaluates risk factors and coverage options tailored to mobile homes.

  • Landlord Insurance Application: Like the earthquake application, this form focuses on properties rented out to tenants. It gathers information about the property and the coverage needed to protect against tenant-related risks.

  • Commercial Property Insurance Application: This document shares similarities with the earthquake form by assessing business property risks. It collects detailed information about the business location and the types of coverage needed.

  • Liability Insurance Application: This application is comparable to the earthquake form in that it gathers personal and property details to assess liability risks. It determines the necessary coverage to protect against potential claims.

  • Umbrella Insurance Application: Similar to the earthquake application, this form collects personal information and existing coverage details. It evaluates the need for additional liability protection beyond standard policies.

Dos and Don'ts

When filling out the California Earthquake Authority form, it's essential to be careful and thorough. Here are five things you should and shouldn't do:

  • Do ensure all personal information is accurate, including names and contact numbers.
  • Don't leave any sections blank. Each part of the application is important for processing.
  • Do check that the expiration date of your policy matches the companion policy.
  • Don't ignore questions about previous earthquake damage. If there is any, explain it in the remarks section.
  • Do secure the applicant's signature before submitting the form.

Following these guidelines can help ensure a smoother application process and avoid potential issues down the line.

Misconceptions

  • Earthquake insurance is not necessary in California. Many people believe that because California has a long history of earthquakes, insurance is unnecessary. However, the risk of significant damage from earthquakes is real, and standard homeowners insurance often does not cover earthquake-related damages.
  • The California Earthquake Authority (CEA) form is too complicated. While the form may appear lengthy, it is designed to gather essential information to ensure proper coverage. Each section serves a purpose, and assistance is available for those who need help completing it.
  • My home is new, so I don't need earthquake insurance. New homes can still be vulnerable to earthquake damage. Even with modern building codes, significant seismic events can lead to extensive damage, making insurance a prudent choice.
  • All types of properties are covered equally. Coverage varies depending on the type of property. Homeowners, renters, and condominium owners have different requirements and coverage options. It’s crucial to understand the specifics of your property type when applying.
  • Coverage limits are fixed and cannot be adjusted. The CEA allows policyholders to choose their coverage limits based on individual needs. This flexibility means you can tailor your policy to better protect your assets.
  • Earthquake insurance is too expensive. While costs can vary, many homeowners find that the peace of mind provided by earthquake insurance is worth the investment. Additionally, there may be discounts available for hazard reduction measures.
  • Once I fill out the form, I am automatically covered. Completing the form does not guarantee coverage. The application must be reviewed and approved by the insurer. Be sure to provide accurate information and follow up to confirm your coverage status.
  • My current insurance policy covers everything I need. Many homeowners mistakenly believe their existing insurance policies cover all potential damages. It is essential to review your policy details to understand what is and isn’t covered, especially regarding earthquakes.

Key takeaways

  • Ensure all applicant information is complete. This includes names, telephone numbers, and addresses for both the applicant and any co-applicants. Incomplete information can delay the processing of your application.

  • Check the companion policy details carefully. The expiration date of the California Earthquake Authority (CEA) policy must match the expiration date of the companion policy. This is crucial for maintaining coverage.

  • Understand the different policy types. The CEA policy type depends on the companion policy you hold, such as homeowner, mobilehome, or renter’s insurance. Selecting the correct type ensures appropriate coverage.

  • Accurately calculate your premium. Include base premiums, any increased limits, and available discounts. This will help you understand the total cost and payment options available, whether annual or in installments.

  • Provide any necessary remarks. If there are issues such as unrepaired earthquake damage, it is vital to note these on the application. Transparency is key to avoiding complications with your policy.